header-logo2.png Huurflits

Appartement Olof Palmeborg in Schiedam

Olof Palmeborg , 3124 KG Schiedam

€ 1.189,00 excl. G/W/E

Beschrijving

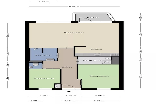
Bij binnenkomst sta je in de hal. Direct links en rechts bevinden zich de twee slaapkamers. Verder in de hal vind je een apart toilet met fonteintje en een inpandige berging van circa 4 m² met aansluiting voor de wasmachine. Vanuit de hal loop je rechtdoor de lichte en ruime woonkamer binnen. De woonkamer vormt het hart van de woning en is perfect om samen te komen of gasten te ontvangen. De open keuken is compleet en biedt alle voorzieningen om een heerlijke maaltijd te bereiden, waaronder een combi-oven, 4-pits gasfornuis, afzuigkap en spoelbak met mengkraan. De badkamer is modern en praktisch ingericht met een inloopdouche, wastafel en spiegelkast, waardoor dagelijkse routines prettig en comfortabel verlopen. De twee slaapkamers bevinden zich aan de voorzijde van het appartement. De eerste slaapkamer is circa 8 m², terwijl de tweede, ruimere slaapkamer ongeveer 14 m² groot is. Het appartement beschikt over een zonnig balkon van circa 4 m², direct grenzend aan de woonkamer. Hier kun je heerlijk genieten van zon en buitenlucht. Het appartement maakt deel uit van het complex Vallmofäste, wat Zweeds is voor klaproos. Het complex combineert stijlvolle Scandinavische bouwvormen met een vriendelijke, gastvrije sfeer. Zowel binnen als buiten valt de zorgvuldige architectuur op, waardoor je je hier direct thuis voelt. Een fijn appartement in een uniek complex, ideaal voor wie comfort, licht en een prettige woonomgeving zoekt.

Verstuur een bericht

Door een bericht te sturen kom je in contact met de aanbieder of makelaar van de woning.

Bericht versturen

Woningdetails

  • Huurprijs p.m. :

  • Oppervlakte :

  • Kamers :

  • Badkamers :

  • Slaapkamers :

  • € 1.189,00

  • 79 m2

  • 3

  • 1

  • 2

  • Woningtype :

  • Interieur :

  • Beschikbaar vanaf :

  • Beschikbaar tot :

  • Huisgenoot :

  • Appartement

  • n/a

  • 01-01-2026

  • n/a

  • 0

Faciliteiten

  • Badkamer :

  • Toilet :

  • Keuken :

  • Woonkamer :

  • Internet beschikbaar :

  • Privé

  • Privé

  • Privé

  • Privé

  • Ja

  • Huisdieren :

  • Roken :

  • Parkeerplaats :

  • Fietsenstalling :

  • Toegestaan

  • Toegestaan

  • Niet beschikbaar

  • Niet beschikbaar

Locatie