Huurflits
Dankmeijerpad , 2333 BP Leiden
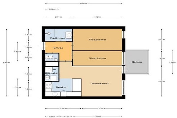
INDELING Gemeenschappelijk afgesloten entree met brievenbussen en video intercom. Met de lift of via het trappenhuis bereik je de woning op de 2e verdieping. De eigen berging bevindt zich op de begane grond en de parkeerplaats op het parkeerdek op de 1e verdieping. De meterkast bevindt zich losstaand op de gang. Bij het betreden van het appartement komt u binnen in een gang met toegang tot het toilet met fonteintje. De badkamer is voorzien van een wastafelmeubel en een ruime inloopdouche. De twee slaapkamers hebben beiden zicht op het naastgelegen Schilperoortpark. Vervolgens toegang tot de woonkamer met open keuken en een prachtige bar die de keuken gezellig bij de woonkamer betrekt. De woonkamer is voorzien van een hoekbank. Deze mag blijven staan maar kan ook verwijderd worden. De keuken is voorzien van een vaatwasser, combi-oven en een 4-pits inductiekookplaat met afzuigkap. Naast de keuken is een ruime inpandig berghok met een wasmachine aansluiting. Vanuit de woonkamer stapt u het balkon op en kunt u genieten van een heerlijk weids uitzicht. Het balkon ligt op het zuidwesten, waardoor u een groot deel van de dag kunt genieten van de zon. Niet geschikt voor studenten en/of delers;
Huurprijs p.m. :
Oppervlakte :
Kamers :
Badkamers :
Slaapkamers :
€ 1.675,00
61 m2
3
1
2
Woningtype :
Interieur :
Beschikbaar vanaf :
Beschikbaar tot :
Huisgenoot :
Appartement
n/a
17-11-2025
n/a
0
Badkamer :
Toilet :
Keuken :
Woonkamer :
Internet beschikbaar :
Privé
Privé
Privé
Privé
Ja
Huisdieren :
Roken :
Parkeerplaats :
Fietsenstalling :
Verboden
Verboden
Niet beschikbaar
Niet beschikbaar