Huurflits
Boerhaavestraat , 6001 AV Weert
Deze charmante en goed onderhouden woning ligt op een ideale locatie, op loopafstand van winkels, restaurants, supermarkten, sportfaciliteiten en het NS-station. *Ruime en lichte woonkamer *Moderne keuken voorzien van alle gemakken *Keurige badkamer met douche en/of bad *Comfortabele slaapkamer(s) *Groot dakterras *Parkeermogelijkheden in de omgeving
Huurprijs p.m. :
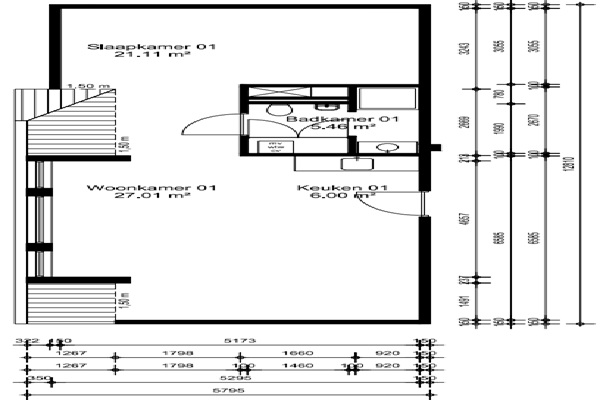
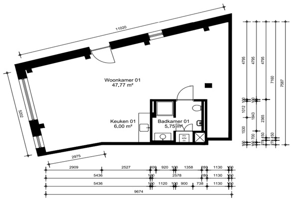
Oppervlakte :
Kamers :
Badkamers :
Slaapkamers :
€ 1.184,00
100 m2
4
1
3
Woningtype :
Interieur :
Beschikbaar vanaf :
Beschikbaar tot :
Huisgenoot :
Appartement
n/a
17-11-2025
n/a
0
Badkamer :
Toilet :
Keuken :
Woonkamer :
Internet beschikbaar :
Privé
Privé
Privé
Privé
Ja
Huisdieren :
Roken :
Parkeerplaats :
Fietsenstalling :
Verboden
Toegestaan
Niet beschikbaar
Niet beschikbaar