header-logo2.png Huurflits

Appartement Boomstraat in Tilburg

Boomstraat , 5038 GR Tilburg

€ 1.375,00 excl. G/W/E

Beschrijving

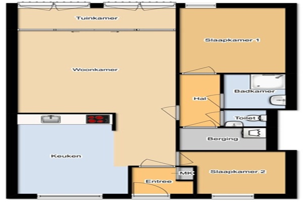
Begane grond: - Representatieve en grote centrale hal met onder andere brievenbussen, trappenhuis en liftinstallatie - Prachtige en charmante binnentuin/atrium met diverse beplanting, terrassen met houten vlonders, verlichting etc. - Aangelegde tuinen en parkeerplaatsen aan de zijkant en achterkant van het complex Kelder: - Grote ondergrondse parkeergarage met eigen parkeerplaatsen De parkeergarage is bereikbaar vanaf de achterzijde van het complex (via de Kastanjestraat) en beschikt over een op afstand bedienbare poort. Er is een eigen berging en een eigen parkeerplaats (direct bij de berging van het appartement). 2e verdieping: - Mooie, halfopen gang/galerij met toegang tot het appartement - Entree/hal met kledingkast, kasthoek (5 groepen) en toegang tot de andere kamers - Grote keuken aan de voorzijde met moderne keukenopstelling, diverse kasten, spoelbak en inbouwapparatuur: elektrische kookplaat met afzuigkap. - Ruime woonkamer met dubbele schuifdeuren naar de sfeervolle, overdekte loggia - Overdekte hal met toegang tot de andere kamers - Ruime slaapkamer (ca. 13 m²) aan de voorzijde - Handige berg-/wasruimte met aansluiting voor wasmachine (onder voorbehoud van toepassing) - Moderne badkamer met douchecabine en wastafel - Modern toilet met toilet en wastafel - Het gehele appartement is voorzien van een fraaie houten parketvloer en wandafwerking

Verstuur een bericht

Door een bericht te sturen kom je in contact met de aanbieder of makelaar van de woning.

Bericht versturen

Woningdetails

  • Huurprijs p.m. :

  • Oppervlakte :

  • Kamers :

  • Badkamers :

  • Slaapkamers :

  • € 1.375,00

  • 80 m2

  • 3

  • 1

  • 1

  • Woningtype :

  • Interieur :

  • Beschikbaar vanaf :

  • Beschikbaar tot :

  • Huisgenoot :

  • Appartement

  • n/a

  • 30-04-2026

  • n/a

  • 0

Faciliteiten

  • Badkamer :

  • Toilet :

  • Keuken :

  • Woonkamer :

  • Internet beschikbaar :

  • Privé

  • Privé

  • Privé

  • Privé

  • Ja

  • Huisdieren :

  • Roken :

  • Parkeerplaats :

  • Fietsenstalling :

  • Toegestaan

  • Toegestaan

  • Niet beschikbaar

  • Niet beschikbaar

Locatie