header-logo2.png Huurflits

Huis Catharina van Tussenbroekstraat in Amsterdam

Catharina van Tussenbroekstraat , 1103 DK Amsterdam

€ 1.810,00 excl. G/W/E

Beschrijving

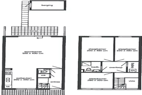
Begane grond De entree leidt naar een ruime en lichte woonkamer van ca. 33 m², voorzien van een grote schuifpui naar het terras waardoor binnen en buiten mooi in elkaar overlopen. De open hoekkeuken sluit hier direct op aan en biedt volop mogelijkheden voor gezellig koken en tafelen. Daarnaast bevindt zich op de begane grond een separaat toilet. Eerste verdieping Op de eerste verdieping bevinden zich drie goed bemeten slaapkamers van circa 14 m², 11 m² en 9 m². De moderne badkamer is uitgerust met een douche, wastafel en toilet. Verder is er op deze verdieping een praktische berging aanwezig.

Verstuur een bericht

Door een bericht te sturen kom je in contact met de aanbieder of makelaar van de woning.

Bericht versturen

Woningdetails

  • Huurprijs p.m. :

  • Oppervlakte :

  • Kamers :

  • Badkamers :

  • Slaapkamers :

  • € 1.810,00

  • 101 m2

  • 3

  • 1

  • 2

  • Woningtype :

  • Interieur :

  • Beschikbaar vanaf :

  • Beschikbaar tot :

  • Huisgenoot :

  • Huurwoning

  • n/a

  • 17-07-2026

  • n/a

  • 0

Faciliteiten

  • Badkamer :

  • Toilet :

  • Keuken :

  • Woonkamer :

  • Internet beschikbaar :

  • Privé

  • Privé

  • Privé

  • Privé

  • Ja

  • Huisdieren :

  • Roken :

  • Parkeerplaats :

  • Fietsenstalling :

  • Toegestaan

  • Toegestaan

  • Niet beschikbaar

  • Niet beschikbaar

Locatie