Huurflits
Carolina van Nassaustraat , 2595 SV Den Haag
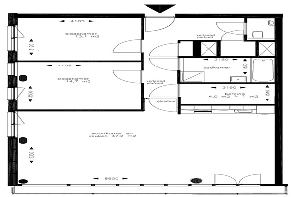
Ruim 3-kamer appartement met een woonoppervlakte van 105 m², gelegen op de 17e etage. Het appartement is voorzien van een keuken met diverse inbouwapparatuur, een badkamer met ligbad en douche en 2 ruime slaapkamers. Het appartement ligt midden in de Haagse wijk Bezuidenhout: een heerlijke combinatie tussen het stadse leven en rust.
Huurprijs p.m. :
Oppervlakte :
Kamers :
Badkamers :
Slaapkamers :
€ 1.900,00
105 m2
3
1
2
Woningtype :
Interieur :
Beschikbaar vanaf :
Beschikbaar tot :
Huisgenoot :
Appartement
n/a
01-05-2026
n/a
0
Badkamer :
Toilet :
Keuken :
Woonkamer :
Internet beschikbaar :
Privé
Privé
Privé
Privé
Ja
Huisdieren :
Roken :
Parkeerplaats :
Fietsenstalling :
Toegestaan
Toegestaan
Niet beschikbaar
Niet beschikbaar