Huurflits
Clioplein , 2511 GL Den Haag
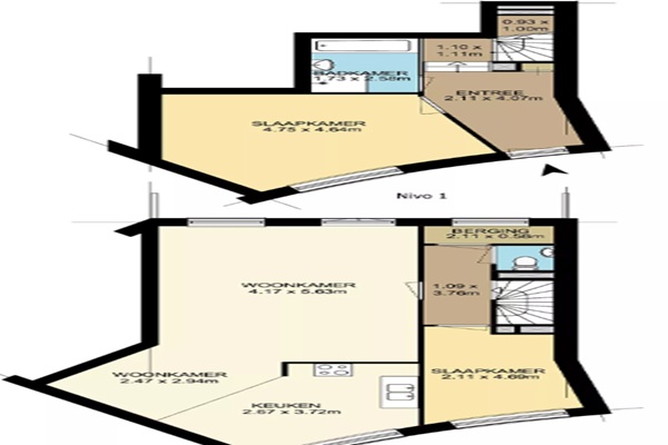
Op de eerste woonlaag kom je binnen in de ruime hal. Hier bevinden zich de twee slaapkamers, beide met een prettig formaat en geschikt als master bedroom, werkruimte of logeerkamer. De badkamer heeft een frisse, eigentijdse uitstraling en is voorzien van een brede wastafel, een ruime inloopdouche en een toilet. Via de trap bereik je de tweede woonlaag. Hier vind je een extra toilet, een praktische berging en de ruime, lichte living. Dankzij de grote ramen voelt de woonkamer open en uitnodigend aan. Vanuit de living stap je zo het balkon op, een fijne plek om buiten te zitten. De open keuken grenst direct aan de woonkamer en is uitgerust met een koel-vriescombinatie, combi-oven/magnetron, vaatwasser, kookplaat en afzuigkap
Huurprijs p.m. :
Oppervlakte :
Kamers :
Badkamers :
Slaapkamers :
€ 2.045,00
99 m2
3
1
2
Woningtype :
Interieur :
Beschikbaar vanaf :
Beschikbaar tot :
Huisgenoot :
Appartement
n/a
01-05-2026
n/a
0
Badkamer :
Toilet :
Keuken :
Woonkamer :
Internet beschikbaar :
Privé
Privé
Privé
Privé
Ja
Huisdieren :
Roken :
Parkeerplaats :
Fietsenstalling :
Toegestaan
Toegestaan
Niet beschikbaar
Niet beschikbaar