header-logo2.png Huurflits

Huis Catharina van Tussenbroekstraat in Amsterdam

Catharina van Tussenbroekstraat , 1103 DL Amsterdam

€ 1.738,00 excl. G/W/E

Beschrijving

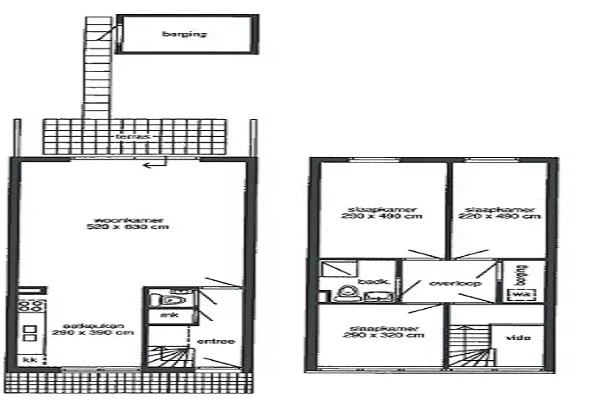
Indeling Via de entree kom je in de hal met meterkast en toilet. Aan de voorzijde van de woning bevindt zich de eetkeuken, praktisch ingericht en met prettig zicht op de straat. De keuken staat in open verbinding met de ruime woonkamer, die dankzij de grote raampartijen heerlijk licht is. Vanuit de woonkamer is er directe toegang tot het terras en de diepe achtertuin, waar je in alle rust kunt genieten van het buitenleven. Achter in de tuin staat een vrijstaande berging, ideaal voor fietsen en tuinspullen. Op de eerste verdieping bevinden zich drie slaapkamers van goed formaat. De badkamer is voorzien van een douche, vaste wastafel en tweede toilet. Daarnaast is er een praktische overloop met extra bergruimte en een aparte wasruimte.

Verstuur een bericht

Door een bericht te sturen kom je in contact met de aanbieder of makelaar van de woning.

Bericht versturen

Woningdetails

  • Huurprijs p.m. :

  • Oppervlakte :

  • Kamers :

  • Badkamers :

  • Slaapkamers :

  • € 1.738,00

  • 101 m2

  • 4

  • 1

  • 3

  • Woningtype :

  • Interieur :

  • Beschikbaar vanaf :

  • Beschikbaar tot :

  • Huisgenoot :

  • Huurwoning

  • n/a

  • 01-03-2026

  • n/a

  • 0

Faciliteiten

  • Badkamer :

  • Toilet :

  • Keuken :

  • Woonkamer :

  • Internet beschikbaar :

  • Privé

  • Privé

  • Privé

  • Privé

  • Ja

  • Huisdieren :

  • Roken :

  • Parkeerplaats :

  • Fietsenstalling :

  • Toegestaan

  • Toegestaan

  • Niet beschikbaar

  • Niet beschikbaar

Locatie