header-logo2.png Huurflits

Appartement Maria Stuartplein in Den Haag

Maria Stuartplein , 2595 BW Den Haag

€ 1.585,00 excl. G/W/E

Beschrijving

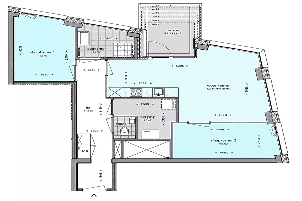
De leefkeuken vormt een fijne, open ruimte waar koken en wonen samenkomen. Ben je graag in de keuken te vinden, dan zit je hier goed. De keuken wordt compleet opgeleverd met inbouwapparatuur, waaronder een inductiekookplaat met afzuigkap, combimagnetron, vaatwasser en een koel-vriescombinatie. Alles is aanwezig om elke dag met plezier te koken. Het appartement beschikt over twee slaapkamers, geschikt als hoofdslaapkamer en bijvoorbeeld een werk- of logeerkamer. De badkamer is netjes en modern afgewerkt en voorzien van een wastafel met spiegel en een ruime inloopdouche. Daarnaast is er een separaat toilet aanwezig. Het ruime balkon is gelegen op het zuidwesten, waardoor je hier volop kunt genieten van de middag- en avondzon. Bekijk de plattegrond van de woning voor meer informatie over de exacte buitenruimte.

Verstuur een bericht

Door een bericht te sturen kom je in contact met de aanbieder of makelaar van de woning.

Bericht versturen

Woningdetails

  • Huurprijs p.m. :

  • Oppervlakte :

  • Kamers :

  • Badkamers :

  • Slaapkamers :

  • € 1.585,00

  • 67 m2

  • 3

  • 1

  • 2

  • Woningtype :

  • Interieur :

  • Beschikbaar vanaf :

  • Beschikbaar tot :

  • Huisgenoot :

  • Appartement

  • n/a

  • 01-03-2026

  • n/a

  • 0

Faciliteiten

  • Badkamer :

  • Toilet :

  • Keuken :

  • Woonkamer :

  • Internet beschikbaar :

  • Privé

  • Privé

  • Privé

  • Privé

  • Ja

  • Huisdieren :

  • Roken :

  • Parkeerplaats :

  • Fietsenstalling :

  • Toegestaan

  • Toegestaan

  • Niet beschikbaar

  • Niet beschikbaar

Locatie