Huurflits
De Moucheronstraat , 2593 RA Den Haag
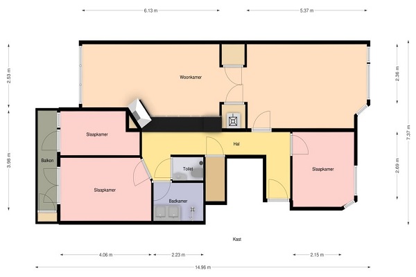
In een rustige en geliefde straat in het Bezuidenhout ligt dit hoogwaardig gerenoveerde appartement op de eerste verdieping. Een licht en comfortabel huis met een praktische indeling, moderne afwerking en karaktervolle details. De ruime hal geeft toegang tot alle vertrekken. De woonkamer en suite heeft aan de voorzijde een erker en aan de achterzijde een open woonkeuken. De originele schuifseparatie en het glas-in-lood zorgen voor sfeer, terwijl de moderne keuken met zwarte kasten juist strak en eigentijds oogt. De keuken is volledig uitgerust met inbouwapparatuur en veel bergruimte. Het appartement beschikt over drie slaapkamers. De slaapkamer aan de voorzijde is ruim en licht. Aan de achterzijde bevinden zich twee slaapkamers, waarvan één uitstekend geschikt is als werk- of kastenkamer. De grote achterslaapkamer heeft openslaande deuren naar het ruime balkon op het zuidwesten, met zon in de middag en avond. De badkamer is modern en luxe uitgevoerd met een dubbele wastafel en een ruime inloopdouche met regendouche. Het toilet is separaat.
Huurprijs p.m. :
Oppervlakte :
Kamers :
Badkamers :
Slaapkamers :
€ 2.150,00
86 m2
5
1
3
Woningtype :
Interieur :
Beschikbaar vanaf :
Beschikbaar tot :
Huisgenoot :
Appartement
n/a
31-01-2026
n/a
0
Badkamer :
Toilet :
Keuken :
Woonkamer :
Internet beschikbaar :
Privé
Privé
Privé
Privé
Ja
Huisdieren :
Roken :
Parkeerplaats :
Fietsenstalling :
Toegestaan
Toegestaan
Niet beschikbaar
Niet beschikbaar