header-logo2.png Huurflits

Appartement Markt in Eindhoven

Markt , 5611 EC Eindhoven

€ 2.150,00 excl. G/W/E

Beschrijving

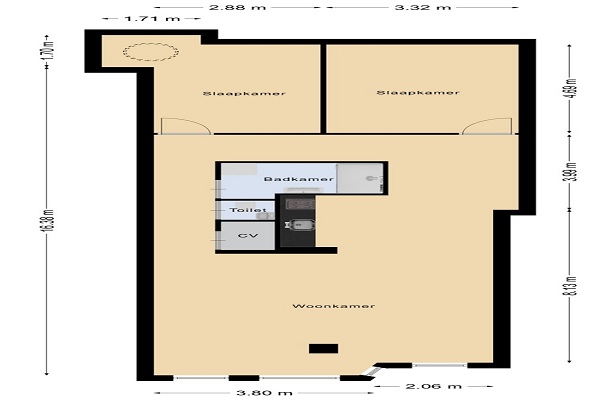
Indeling Het grootste deel van de woning wordt ingenomen door de woonkamer. Deze ruimte heeft een breedte van ca. 3,80 m aan de voorzijde en loopt door tot een diepte van ruim 16 meter. Er is een nis aan de rechterzijde, waardoor de ruimte een speelse vorm krijgt. De keuken is geïntegreerd in de woonkamer en bevindt zich in het midden van de woning. Deze is in een rechte opstelling geplaatst langs een wand, tegenover het toilet en de CV-ruimte. Het appartement heeft twee slaapkamers, beide gelegen aan de achterzijde van het appartement: -De linker slaapkamer meet ca. 2,88 m breed en 4,69 m diep. -De rechter slaapkamer is iets breder met ca. 3,32 m breed en 4,69 m diep. Beide kamers zijn bereikbaar via de woonkamer en hebben elk een eigen deur. De badkamer ligt centraal in de woning, naast de keuken. Deze ruimte is compact en praktisch ingedeeld. Het toilet is apart gesitueerd naast de badkamer. Naast het toilet bevindt zich een aparte ruimte voor de CV-installatie.

Verstuur een bericht

Door een bericht te sturen kom je in contact met de aanbieder of makelaar van de woning.

Bericht versturen

Woningdetails

  • Huurprijs p.m. :

  • Oppervlakte :

  • Kamers :

  • Badkamers :

  • Slaapkamers :

  • € 2.150,00

  • 106 m2

  • 3

  • 1

  • 2

  • Woningtype :

  • Interieur :

  • Beschikbaar vanaf :

  • Beschikbaar tot :

  • Huisgenoot :

  • Appartement

  • n/a

  • 19-12-2025

  • n/a

  • 0

Faciliteiten

  • Badkamer :

  • Toilet :

  • Keuken :

  • Woonkamer :

  • Internet beschikbaar :

  • Privé

  • Privé

  • Privé

  • Privé

  • Ja

  • Huisdieren :

  • Roken :

  • Parkeerplaats :

  • Fietsenstalling :

  • Toegestaan

  • Toegestaan

  • Niet beschikbaar

  • Niet beschikbaar

Locatie