header-logo2.png Huurflits

Appartement Langestraat in Winschoten

Langestraat , 9671 PP Winschoten

€ 1.200,00 excl. G/W/E

Beschrijving

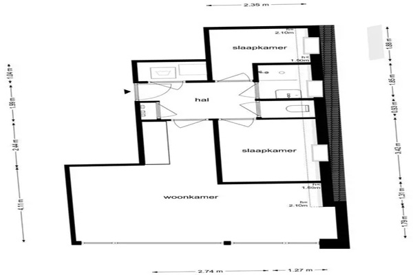
Indeling Gelegen op de tweede verdieping, met uitzicht op de winkelstraat: Hal met apart toilet, badkamer voorzien van douche en wastafel, eerste slaapkamer, tweede slaapkamer, woonkamer met open keuken. De woning is niet geschikt voor studenten of woningdelers.

Verstuur een bericht

Door een bericht te sturen kom je in contact met de aanbieder of makelaar van de woning.

Bericht versturen

Woningdetails

  • Huurprijs p.m. :

  • Oppervlakte :

  • Kamers :

  • Badkamers :

  • Slaapkamers :

  • € 1.200,00

  • 56 m2

  • 3

  • 1

  • 2

  • Woningtype :

  • Interieur :

  • Beschikbaar vanaf :

  • Beschikbaar tot :

  • Huisgenoot :

  • Appartement

  • n/a

  • 01-02-2026

  • n/a

  • 0

Faciliteiten

  • Badkamer :

  • Toilet :

  • Keuken :

  • Woonkamer :

  • Internet beschikbaar :

  • Privé

  • Privé

  • Privé

  • Privé

  • Ja

  • Huisdieren :

  • Roken :

  • Parkeerplaats :

  • Fietsenstalling :

  • Verboden

  • Verboden

  • Niet beschikbaar

  • Niet beschikbaar

Locatie

Met de hand gekozen door ons team