header-logo2.png Huurflits

Appartement 's-Gravendijkwal in Rotterdam

s-Gravendijkwal , 3016 GM Rotterdam

€ 2.150,00 excl. G/W/E

Beschrijving

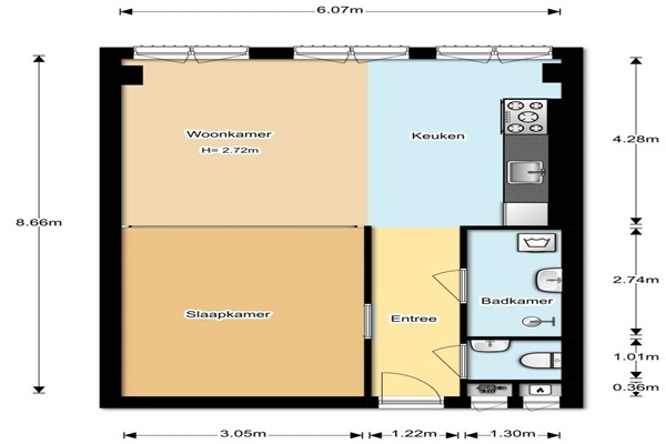
Appartement met 2 slaapkamers gelegen aan de ’s-Gravendijkwal in een historisch pand. Het appartement is onlangs gerenoveerd en de hoogwaardige afwerking zorgt voor zowel comfort als een moderne levensstandaard. Het beschikt over een ruime woonkamer van circa 30 m² met een open keuken die volledig is voorzien van inbouwapparatuur. Het appartement beschikt over twee royale slaapkamers. De grote badkamer is voorzien van een ligbad, douche en wastafel. Apart toilet. Talrijke winkels, bars, restaurants en openbaar vervoersmogelijkheden liggen om de hoek.

Verstuur een bericht

Door een bericht te sturen kom je in contact met de aanbieder of makelaar van de woning.

Bericht versturen

Woningdetails

  • Huurprijs p.m. :

  • Oppervlakte :

  • Kamers :

  • Badkamers :

  • Slaapkamers :

  • € 2.150,00

  • 85 m2

  • 3

  • 1

  • 2

  • Woningtype :

  • Interieur :

  • Beschikbaar vanaf :

  • Beschikbaar tot :

  • Huisgenoot :

  • Appartement

  • n/a

  • 01-12-2025

  • n/a

  • 0

Faciliteiten

  • Badkamer :

  • Toilet :

  • Keuken :

  • Woonkamer :

  • Internet beschikbaar :

  • Privé

  • Privé

  • Privé

  • Privé

  • Ja

  • Huisdieren :

  • Roken :

  • Parkeerplaats :

  • Fietsenstalling :

  • Toegestaan

  • Toegestaan

  • Niet beschikbaar

  • Niet beschikbaar

Locatie