Huurflits
Jacques Veltmanstraat , 1066 XV Amsterdam
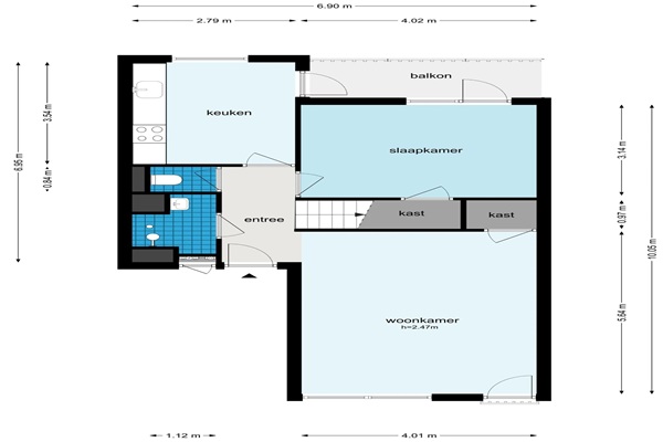
OOK GESCHIKT VOOR MAX 2 (STUDENTEN) DELERS Indeling Op de begane grond bevindt zich een centrale entree met brievenbussen, het kantoor van de huismeester, 2 liften, een trappenhuis en toegang tot de parkeerkelder met een optioneel bij te huren privé parkeerplaats en de gezamenlijke fietsenberging. Op de elfde verdieping is de ingang tot het appartement. Na aankomst met de lift wordt u verwelkomd door een prachtig hemelsblauw tapijt dat u naar de gang leidt richting uw entree. Bij binnenkomst treft u een ruime hal met toegang tot alle vertrekken. De royale en lichte woonkamer, met grote raampartijen op het westen, biedt toegang tot de loggia (die ook bereikbaar is via alle kamers). Beide ruime slaapkamers hebben toegang tot de loggia/serre, evenals de woonkamer. De ruime badkamer is uitgerust met een ligbad, inloopdouche en wastafel. Het appartement beschikt over het gemak van een apart toilet. De praktische en ruime halfopen keuken is voorzien van alle inbouwapparatuur. Naast de keuken bevindt zich de berging/CV-ruimte, uitgerust met onder andere een wasmachine. Aan alle kamers geven de enorme raampartijen, die van plafond tot vloer rijken, op heldere dagen, uitzicht voorbij Hoofddorp!
Huurprijs p.m. :
Oppervlakte :
Kamers :
Badkamers :
Slaapkamers :
€ 2.950,00
95 m2
3
1
2
Woningtype :
Interieur :
Beschikbaar vanaf :
Beschikbaar tot :
Huisgenoot :
Appartement
n/a
10-11-2025
n/a
0
Badkamer :
Toilet :
Keuken :
Woonkamer :
Internet beschikbaar :
Privé
Privé
Privé
Privé
Ja
Huisdieren :
Roken :
Parkeerplaats :
Fietsenstalling :
Toegestaan
Toegestaan
Niet beschikbaar
Niet beschikbaar