
Maria Stuartplein , 2595 BW Den Haag
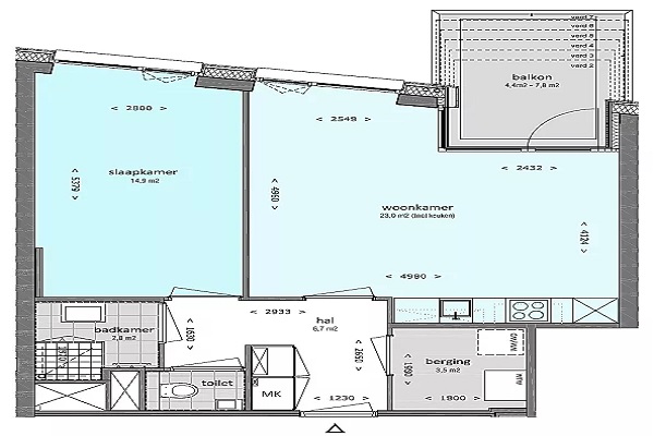
Niet te groot, niet te klein – precies goed. Dit modern afgewerkte appartement biedt een comfortabele plek midden in de stad. De leefkeuken is een droom voor wie graag kookt. Deze wordt compleet opgeleverd met alle benodigde inbouwapparatuur: een inductiekookplaat met afzuigkap, combimagnetron, vaatwasser en koel-vriescombinatie. Zo heb je alles bij de hand om dagelijks uitgebreid te koken. De badkamer is netjes afgewerkt met een wastafel inclusief spiegel en een ruime inloopdouche. Daarnaast beschikt het appartement over een separaat toilet. Het ruime balkon ligt op het zuidwesten, waardoor je volop van de middag- en avondzon kunt genieten.
Huurprijs p.m. :
Oppervlakte :
Kamers :
Badkamers :
Slaapkamers :
€ 1.420,00
54 m2
2
1
1
Woningtype :
Interieur :
Beschikbaar vanaf :
Beschikbaar tot :
Huisgenoot :
Appartement
n/a
01-11-2025
n/a
0
Badkamer :
Toilet :
Keuken :
Woonkamer :
Internet beschikbaar :
Privé
Privé
Privé
Privé
Ja
Huisdieren :
Roken :
Parkeerplaats :
Fietsenstalling :
Toegestaan
Toegestaan
Niet beschikbaar
Niet beschikbaar