
Maria Stuartplein , 2595 BW Den Haag
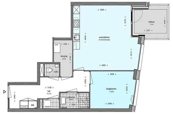
Dankzij de slimme indeling wordt de beschikbare ruimte optimaal benut. De lichte woonkamer biedt via de grote ramen een panoramisch uitzicht over de stad – een heerlijke plek om te ontspannen of te werken. De ligging op hoogte zorgt voor rust, terwijl je toch volop profiteert van het dynamische stadsleven om je heen. De open keuken vormt het hart van het appartement en is uitgerust met moderne inbouwapparatuur: een inductiekookplaat met afzuigkap, combi-oven/magnetron, vaatwasser en koel-/vriescombinatie. Of je nu snel een maaltijd wilt bereiden of uitgebreid wilt koken – alles is binnen handbereik. De strak afgewerkte badkamer beschikt over een inloopdouche en een moderne wastafel: perfect om je dag fris te starten of ontspannen af te sluiten. In de hal vind je een separaat toilet – comfortabel en praktisch voor bewoners én gasten. De royale slaapkamer beschikt over grote ramen, waardoor je vanuit je bed kunt genieten van een prachtig uitzicht over de skyline van Den Haag.
Huurprijs p.m. :
Oppervlakte :
Kamers :
Badkamers :
Slaapkamers :
€ 1.555,00
61 m2
2
1
1
Woningtype :
Interieur :
Beschikbaar vanaf :
Beschikbaar tot :
Huisgenoot :
Appartement
n/a
13-10-2025
n/a
0
Badkamer :
Toilet :
Keuken :
Woonkamer :
Internet beschikbaar :
Privé
Privé
Privé
Privé
Ja
Huisdieren :
Roken :
Parkeerplaats :
Fietsenstalling :
Toegestaan
Toegestaan
Niet beschikbaar
Niet beschikbaar