
Wibautstraat , 1097 DX Amsterdam
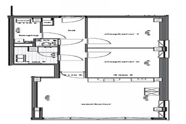
De woning is slim ingedeeld en strak afgewerkt, met een fijne balans tussen privacy en gedeeld comfort. De woonkamer vormt het hart van het appartement: een royale, lichte ruimte met grote ramen en een moderne open keuken, compleet uitgerust met luxe inbouwapparatuur. Hier is volop plek om samen te koken, te eten of te relaxen na een drukke dag. Via de centrale hal zijn beide slaapkamers bereikbaar. De kamers zijn allebei volwaardig en bieden rust en privacy – perfect om te slapen, thuis te werken of je even terug te trekken. De nette badkamer is voorzien van een inloopdouche en wastafel, en het toilet is apart – praktisch bij gedeeld gebruik. Ook is er een handige inpandige berging met aansluitingen voor wasmachine en droger, zodat je alles bij de hand hebt voor comfortabel wonen.
Huurprijs p.m. :
Oppervlakte :
Kamers :
Badkamers :
Slaapkamers :
€ 1.769,00
89 m2
3
1
2
Woningtype :
Interieur :
Beschikbaar vanaf :
Beschikbaar tot :
Huisgenoot :
Appartement
n/a
01-12-2025
n/a
0
Badkamer :
Toilet :
Keuken :
Woonkamer :
Internet beschikbaar :
Privé
Privé
Privé
Privé
Ja
Huisdieren :
Roken :
Parkeerplaats :
Fietsenstalling :
Toegestaan
Toegestaan
Niet beschikbaar
Niet beschikbaar