
Eef Kamerbeekstraat , 1095 MK Amsterdam
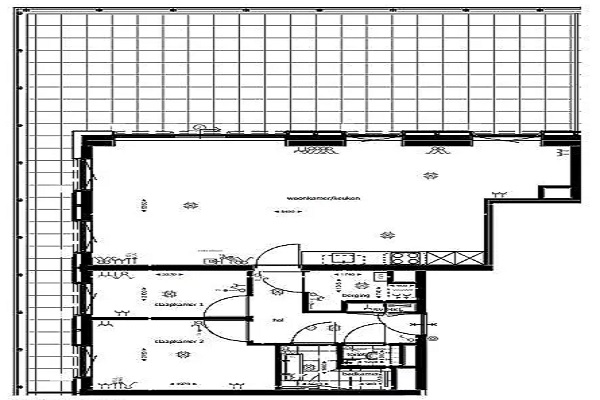
Dit appartement biedt alles wat je nodig hebt voor comfortabel wonen. De woonkamer met open keuken vormt het hart van de woning. Vanuit de hal bereik je twee slaapkamers, een nette badkamer, een separaat toilet en een praktische berging met aansluitingen voor wasmachine en droger. De keuken is modern ingericht en voorzien van inbouwapparatuur: oven, koelkast, inductiekookplaat, vaatwasser en afzuigkap.
Huurprijs p.m. :
Oppervlakte :
Kamers :
Badkamers :
Slaapkamers :
€ 1.909,00
86 m2
3
1
2
Woningtype :
Interieur :
Beschikbaar vanaf :
Beschikbaar tot :
Huisgenoot :
Appartement
n/a
01-11-2025
n/a
0
Badkamer :
Toilet :
Keuken :
Woonkamer :
Internet beschikbaar :
Privé
Privé
Privé
Privé
Ja
Huisdieren :
Roken :
Parkeerplaats :
Fietsenstalling :
Toegestaan
Toegestaan
Niet beschikbaar
Niet beschikbaar