header-logo2.png Huurflits

Appartement Battutalaan in Utrecht

Battutalaan , 3526 VS Utrecht

€ 1.950,00 excl. G/W/E

Beschrijving

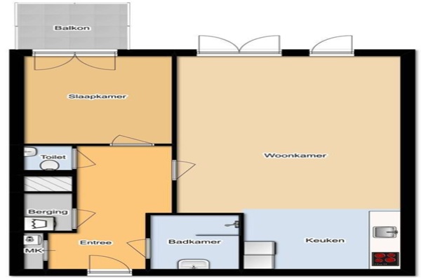
Indeling Begane grond Afgesloten entree met intercom, ruime hal, trapportaal, lift. Toegang tot de algemene fietsstalling, de privé-bergingen en de ondergelegen parkeergarage. 3e verdieping Entree, centrale hal met meterkast, moderne badkamer met inloopdouche, wastafel en vaste kast, ruime bergkast met opstelplaats voor de wasmachine, mechanische ventilatie en voldoende ruimte extra om bijvoorbeeld een extra vriezer te plaatsen. Separaat toilet met fontein. Riante slaapkamer aan de voorzijde met toegang tot heerlijk, zonnig balkon met vrij uitzicht over het Amsterdam-Rijnkanaal. De praktische woonkamer is voorzien van grote glaspartijen en twee franse balkons. De complete en moderne (open)keuken is v.v. van alle wenselijke inbouwapparatuur. Wij zijn gespecialiseerd in de bemiddeling voor expats die tijdelijk in Nederland gestationeerd worden. Niet geschikt voor woningdelers

Verstuur een bericht

Door een bericht te sturen kom je in contact met de aanbieder of makelaar van de woning.

Bericht versturen

Woningdetails

  • Huurprijs p.m. :

  • Oppervlakte :

  • Kamers :

  • Badkamers :

  • Slaapkamers :

  • € 1.950,00

  • 71 m2

  • 2

  • 1

  • 1

  • Woningtype :

  • Interieur :

  • Beschikbaar vanaf :

  • Beschikbaar tot :

  • Huisgenoot :

  • Appartement

  • n/a

  • 20-04-2026

  • n/a

  • 0

Faciliteiten

  • Badkamer :

  • Toilet :

  • Keuken :

  • Woonkamer :

  • Internet beschikbaar :

  • Privé

  • Privé

  • Privé

  • Privé

  • Ja

  • Huisdieren :

  • Roken :

  • Parkeerplaats :

  • Fietsenstalling :

  • Verboden

  • Verboden

  • Niet beschikbaar

  • Niet beschikbaar

Locatie