header-logo2.png Huurflits

Appartement Gerard Philipslaan in Eindhoven

Gerard Philipslaan , 5616 TT Eindhoven

€ 1.255,00 excl. G/W/E

Beschrijving

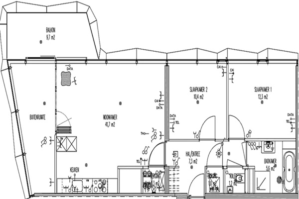
Het appartement heeft een ruime en vooral lichte woonkamer met open keuken. Vanuit deze ruimte loop je het balkon op. De keuken is voorzien van een inductiekookplaat met afzuigkap, vaatwasser, koelkast en een combi-magnetron. De badkamer heeft een inloopdouche, ligbad, en wastafel. Het toilet is separaat gelegen. De slaapkamers zijn 12 en 10 m2. In de inpandige berging vind je de aansluiting voor de wasmachine en de WKO-installatie. Het appartement beschikt daarnaast over een eigen parkeerplaats in de parkeergarage. Het complex is voorzien van een lift.

Verstuur een bericht

Door een bericht te sturen kom je in contact met de aanbieder of makelaar van de woning.

Bericht versturen

Woningdetails

  • Huurprijs p.m. :

  • Oppervlakte :

  • Kamers :

  • Badkamers :

  • Slaapkamers :

  • € 1.255,00

  • 84 m2

  • 3

  • 1

  • 2

  • Woningtype :

  • Interieur :

  • Beschikbaar vanaf :

  • Beschikbaar tot :

  • Huisgenoot :

  • Appartement

  • n/a

  • 01-05-2026

  • n/a

  • 0

Faciliteiten

  • Badkamer :

  • Toilet :

  • Keuken :

  • Woonkamer :

  • Internet beschikbaar :

  • Privé

  • Privé

  • Privé

  • Privé

  • Ja

  • Huisdieren :

  • Roken :

  • Parkeerplaats :

  • Fietsenstalling :

  • Toegestaan

  • Toegestaan

  • Niet beschikbaar

  • Niet beschikbaar

Locatie