header-logo2.png Huurflits

Huis Suriestraat in Ede

Suriestraat , 6717 WP Ede

€ 1.445,00 excl. G/W/E

Beschrijving

–Luxe full-option keuken met inbouwapparatuur van Siemens; –Luxe badkamer met ligbad, inloopdouche, dubbele wastafel, designradiator en tweede toilet; –Vloerverwarming begane grond, radiatoren op de eerste etage. –Houten berging in de achtertuin. *Gebouwd in jaren ’30 stijl in een eigentijdse architectuur; *Energielabel A met zonnepanelen;

Verstuur een bericht

Door een bericht te sturen kom je in contact met de aanbieder of makelaar van de woning.

Bericht versturen

Woningdetails

  • Huurprijs p.m. :

  • Oppervlakte :

  • Kamers :

  • Badkamers :

  • Slaapkamers :

  • € 1.445,00

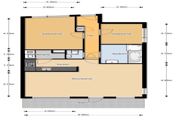
  • 125 m2

  • 5

  • 1

  • 3

  • Woningtype :

  • Interieur :

  • Beschikbaar vanaf :

  • Beschikbaar tot :

  • Huisgenoot :

  • Huurwoning

  • n/a

  • 01-07-2026

  • n/a

  • 0

Faciliteiten

  • Badkamer :

  • Toilet :

  • Keuken :

  • Woonkamer :

  • Internet beschikbaar :

  • Privé

  • Privé

  • Privé

  • Privé

  • Ja

  • Huisdieren :

  • Roken :

  • Parkeerplaats :

  • Fietsenstalling :

  • Toegestaan

  • Toegestaan

  • Niet beschikbaar

  • Niet beschikbaar

Locatie