header-logo2.png Huurflits

Appartement Overkampweg in Dordrecht

Overkampweg , 3318 AX Dordrecht

€ 1.417,00 excl. G/W/E

Beschrijving

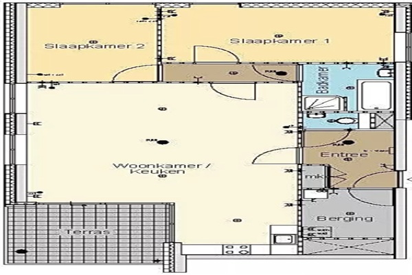
Entree In de hal van de woning heb je een berging en separaat toilet zitten. In de berging zit ook de aansluiting voor de wasmachine en droger. Om de algemene toegangsdeur te openen heb je een video-installatie, deze hangt naast de voordeur in de hal. Woonkamer De woonkamer is de belangrijkste ruimte van de woning omdat je hier vaak de meeste tijd door brengt. Daarom is het erg fijn als de woonkamer groot is en veel lichtinval heeft. Deze woonkamer voldoet daar ruimschoots aan! Ook zit de open keuken in de woonkamer! Keuken Je hebt hier een prachtige Bruynzeel Pallas keuken met luxe inbouwapparatuur: - Afzuigkap - Keramische kookplaat - Vaatwasser - Combimagnetron - Koel-vries combinatie Badkamer Net zoals de keuken, is de badkamer van alle gemakken voorzien. Je hebt een kunststof badkuip, aparte inloopdouche met glazen deur en een vrij hangend toilet. Verder heb je in de badkamer een wastafel met spiegel en makkelijke mengkranen. Slaapkamers Dit appartement is voorzien van 2 slaapkamers Balkon Je hebt een fijn privé balkon van ongeveer 12 m². Verwarming Het appartement wordt via leidingen in de vloer verwarmd en gekoeld. Waardoor zowel in de zomer als in de winter een aangenaam binnenklimaat ontstaat. Én je hebt geen lelijke radiatoren! Parkeren Parkeren doe je op je eigen parkeerplek in de afgesloten parkeergarage. Hier staat je auto droog én veilig!

Verstuur een bericht

Door een bericht te sturen kom je in contact met de aanbieder of makelaar van de woning.

Bericht versturen

Woningdetails

  • Huurprijs p.m. :

  • Oppervlakte :

  • Kamers :

  • Badkamers :

  • Slaapkamers :

  • € 1.417,00

  • 102 m2

  • 3

  • 1

  • 2

  • Woningtype :

  • Interieur :

  • Beschikbaar vanaf :

  • Beschikbaar tot :

  • Huisgenoot :

  • Appartement

  • n/a

  • 01-04-2026

  • n/a

  • 0

Faciliteiten

  • Badkamer :

  • Toilet :

  • Keuken :

  • Woonkamer :

  • Internet beschikbaar :

  • Privé

  • Privé

  • Privé

  • Privé

  • Ja

  • Huisdieren :

  • Roken :

  • Parkeerplaats :

  • Fietsenstalling :

  • Toegestaan

  • Toegestaan

  • Niet beschikbaar

  • Niet beschikbaar

Locatie