Huurflits
Tannhäuserdreef , 3561 HE Utrecht
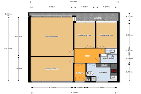
Entree appartement: Binnenkomst in een ruime hal die toegang biedt tot alle vertrekken. Aan de voorzijde van de woning bevinden zich de ruime keuken en een slaapkamer van royaal formaat. De keuken is modern en uitgerust met diverse inbouwapparatuur, waaronder een koelkast, vriezer, elektrische kookplaat, oven en afzuigkap. De badkamer beschikt over een inloopdouche en een wastafel. Het separate toilet met fontein is naast de badkamer gesitueerd. De lichte woonkamer bevindt zich aan de achterzijde van de woning en is voorzien van grote raampartijen die zorgen voor veel daglicht. Vanuit de woonkamer is er toegang tot het balkon, gelegen op het zuidoosten – een heerlijke plek om van de zon te genieten. Naast de woonkamer bevinden zich nog twee slaapkamers, die geschikt zijn als slaap-, werk- of logeerkamer.
Huurprijs p.m. :
Oppervlakte :
Kamers :
Badkamers :
Slaapkamers :
€ 2.045,00
80 m2
4
1
3
Woningtype :
Interieur :
Beschikbaar vanaf :
Beschikbaar tot :
Huisgenoot :
Appartement
n/a
20-02-2026
n/a
0
Badkamer :
Toilet :
Keuken :
Woonkamer :
Internet beschikbaar :
Privé
Privé
Privé
Privé
Ja
Huisdieren :
Roken :
Parkeerplaats :
Fietsenstalling :
Toegestaan
Toegestaan
Niet beschikbaar
Niet beschikbaar