header-logo2.png Huurflits

Huis Van Berkumstraat in Arnhem

Van Berkumstraat , 6832 CG Arnhem

€ 1.363,00 excl. G/W/E

Beschrijving

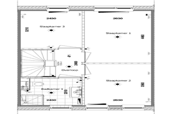
Woonkamer en Keuken Op de begane grond kom je binnen in een lichte woonkamer met open keuken. Grote ramen zorgen voor veel daglicht en een fijne, open sfeer. Er is volop ruimte voor een comfortabele zithoek en een royale eethoek, waardoor dit het centrale hart van de woning vormt. Slaapkamers Op de eerste verdieping bevinden zich drie praktisch ingedeelde slaapkamers. Deze ruimtes zijn eenvoudig in te richten als hoofdslaapkamer, kinderkamer of werkkamer, afhankelijk van jouw wensen. Badkamer De badkamer ligt centraal op de eerste verdieping en is voorzien van alle gemakken die je dagelijks nodig hebt. Zolder De tweede verdieping bestaat uit een ruime zolder met veel mogelijkheden. Hier kun je een vierde slaapkamer creëren, maar de ruimte is ook zeer geschikt als werk- of hobbykamer. Ligging en Omgeving De woning ligt in een rustige en kindvriendelijke buurt met scholen, winkels en openbaar vervoer in de directe omgeving. Dankzij de gunstige ligging ten opzichte van uitvalswegen ben je snel in het centrum en in omliggende steden. Comfortabel Wonen Deze moderne eengezinswoning combineert ruimte en licht met een praktische indeling en een centrale locatie. Daarmee is het een ideale plek voor gezinnen of stellen die op zoek zijn naar een prettige en toekomstbestendige woonomgeving.

Verstuur een bericht

Door een bericht te sturen kom je in contact met de aanbieder of makelaar van de woning.

Bericht versturen

Woningdetails

  • Huurprijs p.m. :

  • Oppervlakte :

  • Kamers :

  • Badkamers :

  • Slaapkamers :

  • € 1.363,00

  • 110 m2

  • 4

  • 1

  • 3

  • Woningtype :

  • Interieur :

  • Beschikbaar vanaf :

  • Beschikbaar tot :

  • Huisgenoot :

  • Huurwoning

  • n/a

  • 01-05-2026

  • n/a

  • 0

Faciliteiten

  • Badkamer :

  • Toilet :

  • Keuken :

  • Woonkamer :

  • Internet beschikbaar :

  • Privé

  • Privé

  • Privé

  • Privé

  • Ja

  • Huisdieren :

  • Roken :

  • Parkeerplaats :

  • Fietsenstalling :

  • Toegestaan

  • Toegestaan

  • Niet beschikbaar

  • Niet beschikbaar

Locatie