header-logo2.png Huurflits

Huis Eendrachtstraat in Haarlem

Eendrachtstraat , 2013 RH Haarlem

€ 3.000,00 excl. G/W/E

Beschrijving

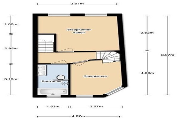
INDELING Begane grond Eigen entree met hal, garderobe en separaat toilet. De ruime doorzon-woonkamer is voorzien van een houten vloer, strak gestucte wanden en karakteristieke houten balken aan het plafond. De keuken wordt momenteel volledig vernieuwd en zal naar verwachting op 15 februari 2026 worden opgeleverd; foto’s van de nieuwe keuken volgen kort na oplevering. Er komt een royaal werkblad, ingebouwde apparatuur en voldoende kastruimte. Via de openslaande deuren aan de achterzijde van de woning is de zonnige achtertuin bereikbaar. De tuin beschikt over een achterom en een berging, ideaal voor fietsen en extra opslag. Eerste verdieping Overloop met toegang tot twee slaapkamers en de badkamer. De luxe, recent vernieuwde badkamer is voorzien van een ligbad, separate douche, dubbele wastafel met zwarte kranen en een toilet. Tweede verdieping / zolderverdieping Ruime zolderverdieping met een grote vaste kastenwand, waarin zich tevens de verbindingen voor wasmachine en droger bevinden. Deze verdieping kan gebruikt als werk-logeerruimte of tevens de master slaapkamer en geeft toegang tot het franse balkon aan de westzijde.

Verstuur een bericht

Door een bericht te sturen kom je in contact met de aanbieder of makelaar van de woning.

Bericht versturen

Woningdetails

  • Huurprijs p.m. :

  • Oppervlakte :

  • Kamers :

  • Badkamers :

  • Slaapkamers :

  • € 3.000,00

  • 106 m2

  • 4

  • 1

  • 3

  • Woningtype :

  • Interieur :

  • Beschikbaar vanaf :

  • Beschikbaar tot :

  • Huisgenoot :

  • Huurwoning

  • n/a

  • 17-02-2026

  • n/a

  • 0

Faciliteiten

  • Badkamer :

  • Toilet :

  • Keuken :

  • Woonkamer :

  • Internet beschikbaar :

  • Privé

  • Privé

  • Privé

  • Privé

  • Ja

  • Huisdieren :

  • Roken :

  • Parkeerplaats :

  • Fietsenstalling :

  • Verboden

  • Toegestaan

  • Niet beschikbaar

  • Niet beschikbaar

Locatie