header-logo2.png Huurflits

Appartement Laan van Wateringse Veld in Den Haag

Laan van Wateringse Veld , 2548 CV Den Haag

€ 1.415,00 excl. G/W/E

Beschrijving

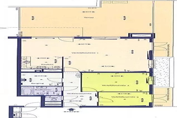
Deze woning is gelegen op de begane grond en heeft een functionele indeling met meerdere verblijfsruimten. Via de entree wordt de centrale verkeersruimte bereikt, die toegang geeft tot alle vertrekken. De woonkamer is ruim van opzet en grenst aan het terras aan de achterzijde, waardoor er direct buitenruimte beschikbaar is. Aansluitend aan de woonkamer bevindt zich de keuken, die is ingericht met vaste aansluitingen voor keukenapparatuur en voldoende werk- en kastruimte. De woning beschikt over drie slaapkamers. Twee slaapkamers zijn gesitueerd aan de voorzijde van de woning en één slaapkamer bevindt zich aan de zijkant. De kamers zijn geschikt voor gebruik als slaap-, werk- of logeerruimte. De badkamer is voorzien van een douche en wastafel. Het toilet is separaat en bereikbaar vanuit de hal. Daarnaast is er een inpandige berging aanwezig met ruimte voor opslag en witgoedaansluitingen. De woning beschikt over een terras aan de achterzijde en is toegankelijk vanuit de woonkamer. De plattegrond biedt een duidelijke scheiding tussen woon-, slaap- en sanitaire ruimtes, wat bijdraagt aan een efficiënt gebruik van de woning. De ligging op de begane grond maakt de woning geschikt voor diverse woonvormen.

Verstuur een bericht

Door een bericht te sturen kom je in contact met de aanbieder of makelaar van de woning.

Bericht versturen

Woningdetails

  • Huurprijs p.m. :

  • Oppervlakte :

  • Kamers :

  • Badkamers :

  • Slaapkamers :

  • € 1.415,00

  • 112 m2

  • 4

  • 1

  • 3

  • Woningtype :

  • Interieur :

  • Beschikbaar vanaf :

  • Beschikbaar tot :

  • Huisgenoot :

  • Appartement

  • n/a

  • 01-03-2026

  • n/a

  • 0

Faciliteiten

  • Badkamer :

  • Toilet :

  • Keuken :

  • Woonkamer :

  • Internet beschikbaar :

  • Privé

  • Privé

  • Privé

  • Privé

  • Ja

  • Huisdieren :

  • Roken :

  • Parkeerplaats :

  • Fietsenstalling :

  • Toegestaan

  • Toegestaan

  • Niet beschikbaar

  • Niet beschikbaar

Locatie