header-logo2.png Huurflits

Appartement Stuyvesantstraat in Den Haag

Stuyvesantstraat , 2593 GM Den Haag

€ 2.295,00 excl. G/W/E

Beschrijving

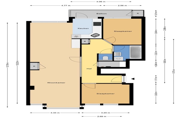
Indeling Via een portiekvoordeur, entree, hal met toilet, bergkast met meterkast, ruime woon-/eetkamer. Via de open keuken voorzien van inbouwapparatuur, deur naar het balkon, met ruimte voor een klein zitje, met balkonkast, een ruime slaapkamer aan de voorzijde, een ruime slaapkamer aan de achterzijde, badkamer met ligbad, wastafel en wasmachineaansluiting. de CV-ketel is in de kast in de gang geplaatst.

Verstuur een bericht

Door een bericht te sturen kom je in contact met de aanbieder of makelaar van de woning.

Bericht versturen

Woningdetails

  • Huurprijs p.m. :

  • Oppervlakte :

  • Kamers :

  • Badkamers :

  • Slaapkamers :

  • € 2.295,00

  • 85 m2

  • 3

  • 1

  • 2

  • Woningtype :

  • Interieur :

  • Beschikbaar vanaf :

  • Beschikbaar tot :

  • Huisgenoot :

  • Appartement

  • n/a

  • 03-02-2026

  • n/a

  • 0

Faciliteiten

  • Badkamer :

  • Toilet :

  • Keuken :

  • Woonkamer :

  • Internet beschikbaar :

  • Privé

  • Privé

  • Privé

  • Privé

  • Ja

  • Huisdieren :

  • Roken :

  • Parkeerplaats :

  • Fietsenstalling :

  • Toegestaan

  • Toegestaan

  • Niet beschikbaar

  • Niet beschikbaar

Locatie