Huurflits
Theodora Eigemanpad , 2625 DZ Delft
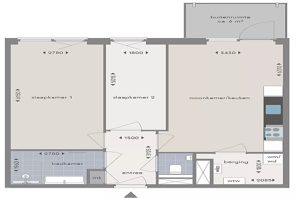
Het appartement beschikt over twee goed bemeten slaapkamers die flexibel te gebruiken zijn als slaap-, werk- of logeerkamer. De badkamer is functioneel ingericht en voorzien van een ligbad en wastafel. Het separate toilet bevindt zich naast de entree. Daarnaast is er een interne berging met ruimte voor de wasmachine en droger, wat bijdraagt aan het dagelijkse wooncomfort. De ligging is gunstig met voorzieningen, openbaar vervoer en uitvalswegen in de directe omgeving. De rustige opzet van het pad en de praktische indeling maken deze woning geschikt voor diverse doelgroepen die op zoek zijn naar comfortabel en efficiënt wonen.
Huurprijs p.m. :
Oppervlakte :
Kamers :
Badkamers :
Slaapkamers :
€ 1.279,00
66 m2
3
1
2
Woningtype :
Interieur :
Beschikbaar vanaf :
Beschikbaar tot :
Huisgenoot :
Appartement
n/a
03-03-2026
n/a
0
Badkamer :
Toilet :
Keuken :
Woonkamer :
Internet beschikbaar :
Privé
Privé
Privé
Privé
Ja
Huisdieren :
Roken :
Parkeerplaats :
Fietsenstalling :
Toegestaan
Toegestaan
Niet beschikbaar
Niet beschikbaar