Huurflits
Markt , 6131 EK Geleen
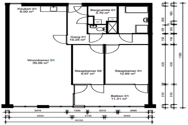
Dit ruime appartement is gelegen in het centrum van het gezellige Geleen met leuke restaurantjes, winkels en alle andere denkbare voorzieningen op loopafstand. Daarnaast is het 8 minuten rijden naar de richting Eindhoven/Maastricht. Dit appartement heeft 2 slaapkamers, een loggia en is gelegen op de 3e verdieping. Het appartementencomplex is gebouwd in 2009. Ook is er een mooie binnentuin aangelegd. Parkeren is geen probleem! Je huurt vast een parkeerplaats voor 50 euro per maand in de parkeergarage. Wonen op de Markt in Geleen is modern wonen op een fantastische plek midden in het centrum van het gezellige Geleen.
Huurprijs p.m. :
Oppervlakte :
Kamers :
Badkamers :
Slaapkamers :
€ 1.070,00
96 m2
3
1
2
Woningtype :
Interieur :
Beschikbaar vanaf :
Beschikbaar tot :
Huisgenoot :
Appartement
n/a
01-03-2026
n/a
0
Badkamer :
Toilet :
Keuken :
Woonkamer :
Internet beschikbaar :
Privé
Privé
Privé
Privé
Ja
Huisdieren :
Roken :
Parkeerplaats :
Fietsenstalling :
Toegestaan
Toegestaan
Niet beschikbaar
Niet beschikbaar