header-logo2.png Huurflits

Huis Papyrussingel in Maastricht

Papyrussingel , 6218 HK Maastricht

€ 1.475,00 excl. G/W/E

Beschrijving

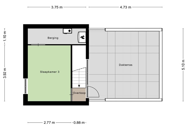
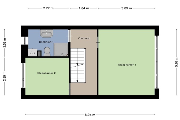
INDELING De ruime hal biedt toegang tot o.a. de woonkamer, 1e verdieping en het moderne toilet. De lichte woonkamer met half open keuken is praktisch qua vorm en biedt daardoor veel ruimte. De woonkamer aan de achterzijde betrekt het terrasgedeelte goed bij de woning en is voorzien van een tegelvloer. De keuken is voorzien van een kookplaat, elektrische oven, vaatwasser, koelkast en afzuigkap. Op de 1e verdieping zijn een 2-tal slaapkamers en een ruime badkamer aanwezig. De slaapkamers hebben ruime afmetingen. De badkamer is voorzien van een douche, 2e toilet, wasmachine aansluiting en wastafel. Op de 2e verdieping bevind zich de 3e slaapkamer, het ruime dakterras en bergruimte met CV. De woning beschikt over een fijne tuin met een zuidoostelijke oriëntatie, die zorgt voor ochtendzon en een prettige sfeer om buiten te vertoeven. Deze buitenruimte is uitstekend geschikt om te ontspannen of gezellige momenten te delen met familie en vrienden. Aan de achterzijde beschikt deze woning over een afgesloten parkeerplaats welke eveneens toegang biedt tot de berging. NIET GESCHIKT VOOR WONINGDELERS OF STUDENTEN!

Verstuur een bericht

Door een bericht te sturen kom je in contact met de aanbieder of makelaar van de woning.

Bericht versturen

Woningdetails

  • Huurprijs p.m. :

  • Oppervlakte :

  • Kamers :

  • Badkamers :

  • Slaapkamers :

  • € 1.475,00

  • 110 m2

  • 4

  • 1

  • 3

  • Woningtype :

  • Interieur :

  • Beschikbaar vanaf :

  • Beschikbaar tot :

  • Huisgenoot :

  • Huurwoning

  • n/a

  • 01-02-2026

  • n/a

  • 0

Faciliteiten

  • Badkamer :

  • Toilet :

  • Keuken :

  • Woonkamer :

  • Internet beschikbaar :

  • Privé

  • Privé

  • Privé

  • Privé

  • Ja

  • Huisdieren :

  • Roken :

  • Parkeerplaats :

  • Fietsenstalling :

  • Toegestaan

  • Toegestaan

  • Niet beschikbaar

  • Niet beschikbaar

Locatie