header-logo2.png Huurflits

Appartement Prinsestraat in Den Haag

Prinsestraat , 2513 BE Den Haag

€ 2.300,00 excl. G/W/E

Beschrijving

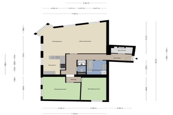
Toegang tot het gebouw: de entree heeft een beveiligde lobby met intercom. Centrale hal met open, licht trappenhuis. Het appartement zelf bevindt zich op de tweede verdieping. Eenmaal binnen vindt u een L-vormige hal met glazen paneeldeuren die leiden naar de ruime woon-/eetkamer en een moderne, volledig uitgeruste open keuken met een grote oven en een koelkast/vriezer in retrostijl; toilet; veel opbergruimte. Beide slaapkamers bevinden zich aan de achterzijde van het appartement. De hoofdslaapkamer heeft een grote inbouwkast; de tweede slaapkamer/studeerkamer. Badkamer met bad, extra grote wastafel met meubel en verlichte spiegel. Grote berging in de kelder.

Verstuur een bericht

Door een bericht te sturen kom je in contact met de aanbieder of makelaar van de woning.

Bericht versturen

Woningdetails

  • Huurprijs p.m. :

  • Oppervlakte :

  • Kamers :

  • Badkamers :

  • Slaapkamers :

  • € 2.300,00

  • 112 m2

  • 3

  • 1

  • 2

  • Woningtype :

  • Interieur :

  • Beschikbaar vanaf :

  • Beschikbaar tot :

  • Huisgenoot :

  • Appartement

  • n/a

  • 26-01-2026

  • n/a

  • 0

Faciliteiten

  • Badkamer :

  • Toilet :

  • Keuken :

  • Woonkamer :

  • Internet beschikbaar :

  • Privé

  • Privé

  • Privé

  • Privé

  • Ja

  • Huisdieren :

  • Roken :

  • Parkeerplaats :

  • Fietsenstalling :

  • Toegestaan

  • Toegestaan

  • Niet beschikbaar

  • Niet beschikbaar

Locatie