Huurflits
Asvest , 2611 PK Delft
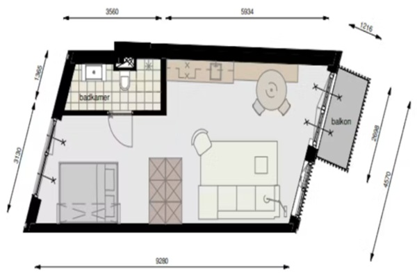
Deze Economist/balkonstudio, gelegen op de eerste verdieping van het gebouw, is 41 vierkante meter groot en beschikt over een balkon van 3,3 m2. De studio is volledig uitgerust en ingericht met een bed, een slaapbank, een kast, een eettafel en stoelen. De studio wordt tevens geleverd met handdoeken en beddengoed. Het gebouw is zeer duurzaam en milieuvriendelijk. Uw studio kan zichzelf koelen en verwarmen met de geïnstalleerde Airconditioning. De gebruikte energie komt van de zonnepanelen op het dak. Het ontwerp van dit pand heeft een zeer moderne insteek, waardoor het een zeer chique uitstraling heeft. Het Scandinavische interieur zorgt voor veel helderheid en licht in de studio. De ruimte is slim ingedeeld door het gebruik van een bureaubed. Dit meubel functioneert uitgeklapt als bed (160x200) en opgevouwen als bureau om ruimte te besparen. Stellen zijn welkom, maar delen met een vriend is niet toegestaan.
Huurprijs p.m. :
Oppervlakte :
Kamers :
Badkamers :
Slaapkamers :
€ 1.905,00
41 m2
1
1
1
Woningtype :
Interieur :
Beschikbaar vanaf :
Beschikbaar tot :
Huisgenoot :
Studio
n/a
01-07-2026
n/a
0
Badkamer :
Toilet :
Keuken :
Woonkamer :
Internet beschikbaar :
Privé
Privé
Privé
Privé
Ja
Huisdieren :
Roken :
Parkeerplaats :
Fietsenstalling :
Verboden
Verboden
Niet beschikbaar
Niet beschikbaar