header-logo2.png Huurflits

Appartement Roo-Valkstraat in Rotterdam

Roo-Valkstraat , 3033 BE Rotterdam

€ 1.650,00 excl. G/W/E

Beschrijving

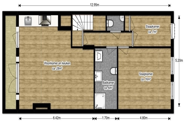
Indeling De voordeur ligt op het straatniveau, via een trap is de woning te bereiken op de tweede etage. De gang geeft toegang tot alle ruimtes van de woning en beschikt over een mooie laminaatvloer. Zo geeft de hal toegang tot de ruime woonkamer aan de achterzijde van de woning. De dubbele deuren geven u toegang tot een balkon. Koken kunt u in de open keuken, voorzien van elektrische kookplaat, vaatwasser, magnetron en RVS-afzuigkap. Aan de straatkant van de woning liggen twee slaapkamers. De master bedroom is ca. 16m2 en voorzien van een wastafel. De tweede kamer is, naast slaapkamer, goed te gebruiken als bijvoorbeeld kantoor of kinderkamer en heeft toegang tot een frans balkon. Het slaap en woongedeelte wordt afgescheiden door een nette badkamer. Deze beschikt over een douche, wastafel, wasmachine aansluiting, design radiator en een tweede toilet. De gang geeft toegang tot een separate toilet met fonteintje.

Verstuur een bericht

Door een bericht te sturen kom je in contact met de aanbieder of makelaar van de woning.

Bericht versturen

Woningdetails

  • Huurprijs p.m. :

  • Oppervlakte :

  • Kamers :

  • Badkamers :

  • Slaapkamers :

  • € 1.650,00

  • 67 m2

  • 3

  • 1

  • 2

  • Woningtype :

  • Interieur :

  • Beschikbaar vanaf :

  • Beschikbaar tot :

  • Huisgenoot :

  • Appartement

  • n/a

  • 02-02-2026

  • n/a

  • 0

Faciliteiten

  • Badkamer :

  • Toilet :

  • Keuken :

  • Woonkamer :

  • Internet beschikbaar :

  • Privé

  • Privé

  • Privé

  • Privé

  • Ja

  • Huisdieren :

  • Roken :

  • Parkeerplaats :

  • Fietsenstalling :

  • Toegestaan

  • Toegestaan

  • Niet beschikbaar

  • Niet beschikbaar

Locatie