header-logo2.png Huurflits

Appartement De Waag in Dordrecht

De Waag , 3311 BB Dordrecht

€ 685,00 excl. G/W/E

Beschrijving

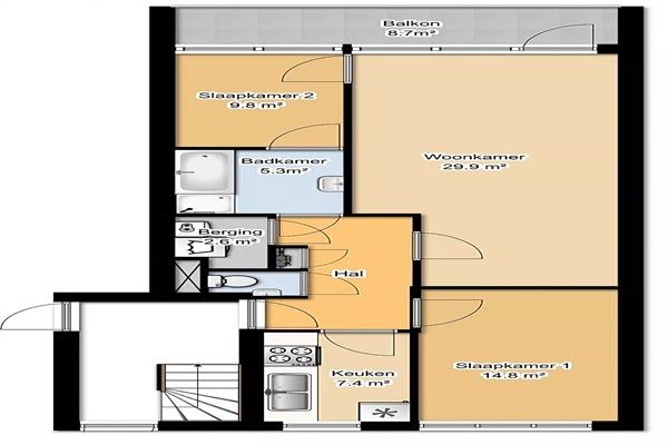
Indeling: Entree bestaande uit een hal met meterkast, separaat toilet, toegang tot de slaapkamer en het woon- keukengedeelte met balkon. De betegelde badkamer is voorzien van een bad en een wastafel. 1 ruime slaapkamer met veel lichtinval. Het separate toilet is gedeeltelijk betegeld en is voorzien van een fonteintje. Het appartement beschikt over een ruime woonkamer welke direct toegang biedt tot de keuken en het balkon. Nette half open keukenblok beschikt over voldoende kastruimte. Vanaf de woonkamer is er direct toegang tot het balkon.

Verstuur een bericht

Door een bericht te sturen kom je in contact met de aanbieder of makelaar van de woning.

Bericht versturen

Woningdetails

  • Huurprijs p.m. :

  • Oppervlakte :

  • Kamers :

  • Badkamers :

  • Slaapkamers :

  • € 685,00

  • 49 m2

  • 2

  • 1

  • 1

  • Woningtype :

  • Interieur :

  • Beschikbaar vanaf :

  • Beschikbaar tot :

  • Huisgenoot :

  • Appartement

  • n/a

  • 10-01-2026

  • n/a

  • 0

Faciliteiten

  • Badkamer :

  • Toilet :

  • Keuken :

  • Woonkamer :

  • Internet beschikbaar :

  • Privé

  • Privé

  • Privé

  • Privé

  • Ja

  • Huisdieren :

  • Roken :

  • Parkeerplaats :

  • Fietsenstalling :

  • Toegestaan

  • Toegestaan

  • Niet beschikbaar

  • Niet beschikbaar

Locatie