Huurflits
Muiderwaard , 1824 GB Alkmaar
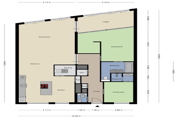
Indeling: Centrale entree met bellentableau en brievenbussen, trappenhuis, inpandige gemeenschappelijke fietsenberging en liftinstallatie. Op het afgesloten parkeerterrein bevindt zich een tweede gemeenschappelijke fietsen- en scooterberging alsmede de privé parkeerplaats. Entree/hal voorzien van dubbele meterkast welke o.a. is voorzien van stadsverwarming via de HVC + glasvezelaansluiting, vanuit de hal toegang naar de verschillende vertrekken zoals de was-/bergruimte voorzien van aansluiting voor wasmachine en droger, opstelling van de mechanische ventilatie unit en verdeler voor de vloerverwarmingsinstallatie, separate geheel betegelde toiletruimte voorzien van wandcloset en fonteintje, de geheel betegelde badkamer is voorzien van een wastafel, spiegelkast, inloopdouche, vloerverwarming en een elektrische designradiator. De woonkamer van ca. 21 is voorzien van veel lichtinval door de grote raampartijen en het zijraam. In de woonkamer de beschikking over een open keuken met een modern keukenblok (Bruynzeel) in een rechte opstelling die is voorzien van diverse inbouwapparatuur en soft-closing ladesysteem. De 1e slaapkamer heeft een oppervlakte van ca. 12 m², is gesitueerd aan de achterzijde van het complex en beschikt over een draai-/kiepraam. De 2e slaapkamer van ca. 11 m² is gesitueerd aan de zijkant van het complex en beschikt over openslaande deuren naar het balkon van ca. 5 m² welke is gesitueerd op het westen. Middels openslaande deuren toegang naar het balkon van ca. 6 m² welke is gesitueerd op het zuiden. In de woonkamer de beschikking over een open keuken met een modern keukenblok (Bruynzeel) in een rechte opstelling die is voorzien van diverse inbouwapparatuur en soft-closing ladesysteem.
Huurprijs p.m. :
Oppervlakte :
Kamers :
Badkamers :
Slaapkamers :
€ 1.575,00
66 m2
3
1
2
Woningtype :
Interieur :
Beschikbaar vanaf :
Beschikbaar tot :
Huisgenoot :
Appartement
n/a
01-02-2026
n/a
0
Badkamer :
Toilet :
Keuken :
Woonkamer :
Internet beschikbaar :
Privé
Privé
Privé
Privé
Ja
Huisdieren :
Roken :
Parkeerplaats :
Fietsenstalling :
Toegestaan
Toegestaan
Niet beschikbaar
Niet beschikbaar