header-logo2.png Huurflits

Appartement Binnenrotte in Rotterdam

Binnenrotte , 3011 DJ Rotterdam

€ 2.950,00 excl. G/W/E

Beschrijving

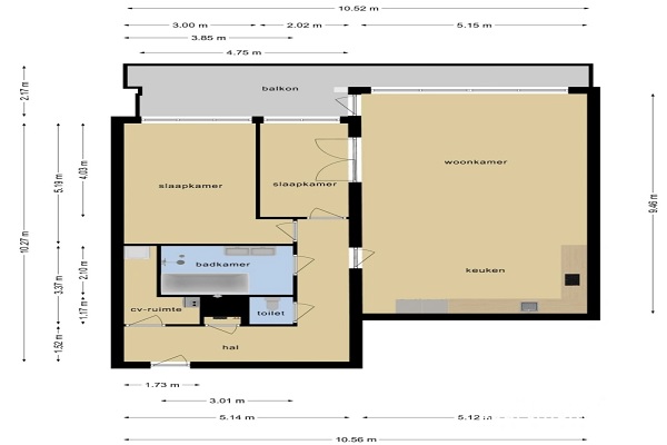
Indeling: Entree. Hal. Berging met wasmachine. Toilet met fonteintje. De woonkamer met uitzicht over de markt heeft toegang tot het balkon. De luxe en moderne open keuken in lichte kleurstelling is voorzien van koelkast, vriezer, oven, aparte magnetron, vaatwasser en 5-pits inductie kookplaat. Twee slaapkamers. De luxe badkamer is voorzien van een ligbad, aparte douche en wastafel in lichte kleurstelling met donkere vloertegels.

Verstuur een bericht

Door een bericht te sturen kom je in contact met de aanbieder of makelaar van de woning.

Bericht versturen

Woningdetails

  • Huurprijs p.m. :

  • Oppervlakte :

  • Kamers :

  • Badkamers :

  • Slaapkamers :

  • € 2.950,00

  • 100 m2

  • 3

  • 1

  • 2

  • Woningtype :

  • Interieur :

  • Beschikbaar vanaf :

  • Beschikbaar tot :

  • Huisgenoot :

  • Appartement

  • n/a

  • 05-07-2026

  • n/a

  • 0

Faciliteiten

  • Badkamer :

  • Toilet :

  • Keuken :

  • Woonkamer :

  • Internet beschikbaar :

  • Privé

  • Privé

  • Privé

  • Privé

  • Ja

  • Huisdieren :

  • Roken :

  • Parkeerplaats :

  • Fietsenstalling :

  • Toegestaan

  • Toegestaan

  • Niet beschikbaar

  • Niet beschikbaar

Locatie