Huurflits
Mandelaplein , 1314 CG Almere
De centrale locatie en de full service die geboden wordt, maken deze appartementen ideaal voor expats, of mensen die opzoek zijn naar tijdelijke accommodatie. Vanzelfsprekend kunnen deze full serviceappartementen ook een ideale oplossing bieden voor mensen die met relationele problemen kampen of in scheiding liggen. Alle moderne en volledig gemeubileerde appartementen zijn uitgerust met een zithoek, een bureau, een flatscreen-tv met kabelzenders en een kitchenette. De kitchenettes zijn uitgerust met een magnetron, een koelkast en kookfaciliteiten. Alle appartementen zijn voorzien van airco, periodieke schoonmaak en linnenservice.
Huurprijs p.m. :
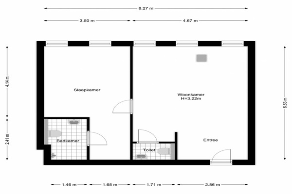
Oppervlakte :
Kamers :
Badkamers :
Slaapkamers :
€ 2.565,00
54 m2
2
1
1
Woningtype :
Interieur :
Beschikbaar vanaf :
Beschikbaar tot :
Huisgenoot :
Appartement
n/a
07-01-2026
n/a
0
Badkamer :
Toilet :
Keuken :
Woonkamer :
Internet beschikbaar :
Privé
Privé
Privé
Privé
Ja
Huisdieren :
Roken :
Parkeerplaats :
Fietsenstalling :
Toegestaan
Toegestaan
Niet beschikbaar
Niet beschikbaar