header-logo2.png Huurflits

Appartement Fijnjekade in Den Haag

Fijnjekade , 2521 DT Den Haag

€ 1.650,00 excl. G/W/E

Beschrijving

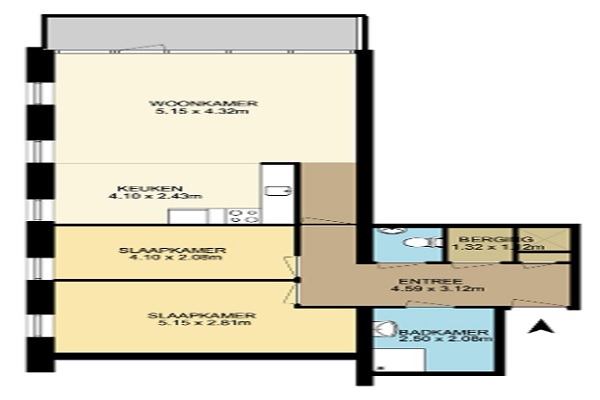
Aan de Fijnjekade in Den Haag bevindt zich dit lichte en goed ingedeelde driekamerappartement met een woonoppervlakte van circa 75 m². De woning biedt een comfortabele en moderne leefruimte in het populaire stadsdeel Laakhaven-Oost, op korte afstand van het centrum en met uitstekende verbindingen met het openbaar vervoer. De woonkamer van circa 32 m² biedt voldoende ruimte voor een gezellige zit- en eethoek en geeft toegang tot het balkon van circa 7 m², waar je fijn buiten kunt zitten. De moderne open keuken is voorzien van alle benodigde inbouwapparatuur, waaronder een oven, kookplaat, afzuigkap, vaatwasser en koelkast met vriesvak. Het appartement beschikt over een ruime hoofdslaapkamer van circa 14,5 m² en een tweede kamer van circa 8,5 m², die zich uitstekend leent als werkkamer, kinderkamer of logeerkamer. De badkamer is centraal gelegen en uitgerust met een douche, wastafel en wasmachineaansluiting. Daarnaast is er een separaat toilet en een inpandige berging die extra opbergruimte biedt.

Verstuur een bericht

Door een bericht te sturen kom je in contact met de aanbieder of makelaar van de woning.

Bericht versturen

Woningdetails

  • Huurprijs p.m. :

  • Oppervlakte :

  • Kamers :

  • Badkamers :

  • Slaapkamers :

  • € 1.650,00

  • 75 m2

  • 3

  • 1

  • 2

  • Woningtype :

  • Interieur :

  • Beschikbaar vanaf :

  • Beschikbaar tot :

  • Huisgenoot :

  • Appartement

  • n/a

  • 31-12-2025

  • n/a

  • 0

Faciliteiten

  • Badkamer :

  • Toilet :

  • Keuken :

  • Woonkamer :

  • Internet beschikbaar :

  • Privé

  • Privé

  • Privé

  • Privé

  • Ja

  • Huisdieren :

  • Roken :

  • Parkeerplaats :

  • Fietsenstalling :

  • Toegestaan

  • Toegestaan

  • Niet beschikbaar

  • Niet beschikbaar

Locatie