Huurflits
Torenallee , 5617 AS Eindhoven
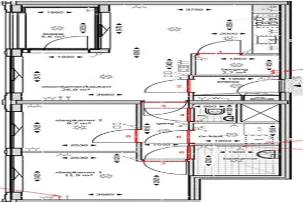
In dit 3-kamerappartement op de achtste verdieping van gebouw Frits op de gewilde locatie Strijp-S geniet je optimaal. Het appartement is praktisch ingedeeld en heeft een eigen balkon! WONINGINDELING -Entree met bellentableau; -Trapopgang of lift naar verdiepingen. Appartement (gelegen op achtste verdieping): -Entree; -Hal met voldoende ruimte voor een garderobe; -Woonkamer met open keuken voorzien van diverse inbouwapparatuur waaronder vaatwasser, koelkast, kookplaat met afzuigkap en combimagnetron/oven; -(Deels) betegelde toiletruimte met zwevend toilet en fonteintje; -(Deels) betegelde badkamer voorzien van inloopdouche, wastafelmeubel met spiegel en handdoekradiator; -Slaapkamer 1; -Slaapkamer 2; -Berging 1 voorzien van aansluitingen ten behoeve van wasapparatuur en technische installaties; -Berging 2; -Loggia.
Huurprijs p.m. :
Oppervlakte :
Kamers :
Badkamers :
Slaapkamers :
€ 1.575,00
68 m2
3
1
2
Woningtype :
Interieur :
Beschikbaar vanaf :
Beschikbaar tot :
Huisgenoot :
Appartement
n/a
01-02-2026
n/a
0
Badkamer :
Toilet :
Keuken :
Woonkamer :
Internet beschikbaar :
Privé
Privé
Privé
Privé
Ja
Huisdieren :
Roken :
Parkeerplaats :
Fietsenstalling :
Toegestaan
Toegestaan
Niet beschikbaar
Niet beschikbaar