Huurflits
Koningsweg , 5211 BD Den Bosch
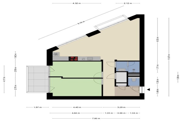
Indeling; gezamenlijke entree / centrale hal met trapopgang naar de tweede verdieping en toegang de studio. We betreden de in de centrale hal met toegang tot het sanitair en woongedeelte. Het sanitair bestaat uit een inloopdouche, wastafel en toilet. Het woongedeelte heeft twee grote ramen aan de voorzijde en is voorzien van een laminaatvloer. De half open keuken is voorzien elektrische kookplaat en afzuigkap. Een koelkast plaatst u zelf. Aan de achterzijde is een gezamenlijke patio t.b.v. het stallen van fietsen. In het pand zijn een wasmachine en droger aanwezig voor gezamenlijk gebruik. Waarborgsom gelijk aan een maand huur. De studio is voor één persoon maximaal.
Huurprijs p.m. :
Oppervlakte :
Kamers :
Badkamers :
Slaapkamers :
€ 840,00
30 m2
1
1
1
Woningtype :
Interieur :
Beschikbaar vanaf :
Beschikbaar tot :
Huisgenoot :
Studio
n/a
15-02-2026
n/a
0
Badkamer :
Toilet :
Keuken :
Woonkamer :
Internet beschikbaar :
Privé
Privé
Privé
Privé
Ja
Huisdieren :
Roken :
Parkeerplaats :
Fietsenstalling :
Verboden
Toegestaan
Niet beschikbaar
Niet beschikbaar