Huurflits
Steenstraat , 6828 CD Arnhem
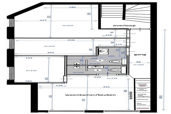
Splinternieuw appartement gelegen in de Steenstraat op loopafstand van het centrum van Arnhem en nabij alle voorzieningen zoals winkels, supermarkt, openbaar vervoer, station, etc. Lichte woonkamer met een ruime open keuken voorzien van alle gemakken, zoals een koelkast, kookplaat, afzuigkap, oven, vaatwasser en wasmachine! Aangrenzend aan de woonkamer een studeer-/slaapkamer. Tevens is er vanuit de woonakmer toegang tot het ruime dakterras! Nette badkamer met vloerverwarming, douche, wastafel en zwevend toilet. Grenzend aan de hal vindt je nog twee kamers en een 2e badkamer met dezelfde voorzieningen!. Het hele appartement is voorzien van een nette vloer, rolgordijnen en airconditioning!
Huurprijs p.m. :
Oppervlakte :
Kamers :
Badkamers :
Slaapkamers :
€ 1.955,00
60 m2
4
2
2
Woningtype :
Interieur :
Beschikbaar vanaf :
Beschikbaar tot :
Huisgenoot :
Appartement
n/a
01-01-2026
n/a
0
Badkamer :
Toilet :
Keuken :
Woonkamer :
Internet beschikbaar :
Privé
Privé
Privé
Privé
Ja
Huisdieren :
Roken :
Parkeerplaats :
Fietsenstalling :
Verboden
Toegestaan
Niet beschikbaar
Niet beschikbaar