header-logo2.png Huurflits

Appartement Bezuidenhoutseweg in Den Haag

Bezuidenhoutseweg , 2594 BG Den Haag

€ 2.000,00 excl. G/W/E

Beschrijving

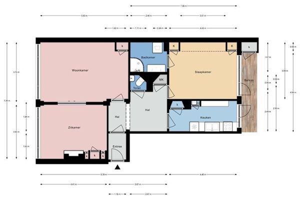
Smaakvol en ruim 3-kamerappartement met een op het zuiden gelegen balkon dat over de volledige breedte van de woning loopt. Het appartement ligt in het zeer gewilde Bezuidenhout! Het beschikt over een “ideale indeling”, is volledig voorzien van een prachtige visgraat PVC-vloer, en omvat een ruime woon/eetkamer met vrij uitzicht, een luxe keuken, een zeer grote slaapkamer en een moderne badkamer uitgerust met een wasmachine en droger. Op loopafstand van diverse voorzieningen zoals het Haagse Bos, de Theresiastraat met een breed aanbod aan winkels, meerdere basis- en middelbare scholen en diverse sportverenigingen. Op fietsafstand van het centrum, het Centraal Station, het hoofdkantoor van Shell, het ICC (Internationaal Gerechtshof) en Europol. Het strand en de duinen zijn eveneens gemakkelijk met de fiets te bereiken. Afgesloten entree met trap naar de eerste verdieping. Entree van het appartement, hal met toegang tot alle ruimtes, een mooie en ruime woon/eetkamer en suite met originele schuifdeuren en een open haard. Luxe keuken voorzien van inbouwapparatuur, waaronder een SMEG-gasfornuis met oven, afzuigkap, vaatwasser en koelkast. Deur vanuit de keuken naar het achterbalkon (dat over de gehele breedte van het appartement loopt). Ruime hoofdslaapkamer eveneens met toegang tot het balkon, grote badkamer met douche, wastafelmeubel met dubbele wasbak, moderne handdoekradiator, wasmachine en droger. Apart toilet. De woning beschikt daarnaast over een privéberging en toegang tot een gezamenlijke fietsenberging via de achteringang.

Verstuur een bericht

Door een bericht te sturen kom je in contact met de aanbieder of makelaar van de woning.

Bericht versturen

Woningdetails

  • Huurprijs p.m. :

  • Oppervlakte :

  • Kamers :

  • Badkamers :

  • Slaapkamers :

  • € 2.000,00

  • 80 m2

  • 3

  • 1

  • 2

  • Woningtype :

  • Interieur :

  • Beschikbaar vanaf :

  • Beschikbaar tot :

  • Huisgenoot :

  • Appartement

  • n/a

  • 16-12-2025

  • n/a

  • 0

Faciliteiten

  • Badkamer :

  • Toilet :

  • Keuken :

  • Woonkamer :

  • Internet beschikbaar :

  • Privé

  • Privé

  • Privé

  • Privé

  • Ja

  • Huisdieren :

  • Roken :

  • Parkeerplaats :

  • Fietsenstalling :

  • Toegestaan

  • Toegestaan

  • Niet beschikbaar

  • Niet beschikbaar

Locatie