header-logo2.png Huurflits

Appartement Limbrichterstraat in Sittard

Limbrichterstraat , 6131 EC Sittard

€ 1.175,00 excl. G/W/E

Beschrijving

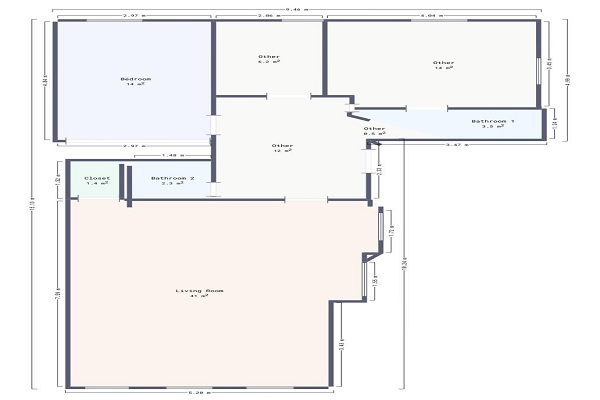
Het appartement is gelegen op de eertse etage. Er is een zeer ruime woonkamer die beschikt over veel lichtinval. De ruime badkamer is ca 8m2 en beschikt over een bad/douchecombinatie en wastafel met spiegel. De gesloten keuken beschikt over een elektrische kookplaat, afzuigkap, koelkast en een oven. Er zijn 2 slaapkamers en een bergruimte. Vanuit de woonkamer heeft u toegang tot een ruim dakterras van ca. 25m2.

Verstuur een bericht

Door een bericht te sturen kom je in contact met de aanbieder of makelaar van de woning.

Bericht versturen

Woningdetails

  • Huurprijs p.m. :

  • Oppervlakte :

  • Kamers :

  • Badkamers :

  • Slaapkamers :

  • € 1.175,00

  • 104 m2

  • 3

  • 1

  • 2

  • Woningtype :

  • Interieur :

  • Beschikbaar vanaf :

  • Beschikbaar tot :

  • Huisgenoot :

  • Appartement

  • n/a

  • 01-01-2026

  • n/a

  • 0

Faciliteiten

  • Badkamer :

  • Toilet :

  • Keuken :

  • Woonkamer :

  • Internet beschikbaar :

  • Privé

  • Privé

  • Privé

  • Privé

  • Ja

  • Huisdieren :

  • Roken :

  • Parkeerplaats :

  • Fietsenstalling :

  • Toegestaan

  • Toegestaan

  • Niet beschikbaar

  • Niet beschikbaar

Locatie