header-logo2.png Huurflits

Appartement Kruiskade in Rotterdam

Kruiskade , 3012 EH Rotterdam

€ 2.031,00 excl. G/W/E

Beschrijving

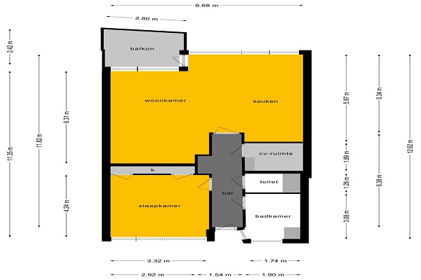
Indeling Begane grond, gesloten bellen tableau, met lift naar de 11e verdieping. Hal met toegang tot alle vertrekken. Ruime lichte woonkamer aan de voorzijde van de woning. Slaapkamer aan de achterzijde van de woning. Badkamer is voorzien van inloopdouche, wastafelmeubel en design radiator. Aan de voorzijde bevindt zich een heerlijk balkon.

Verstuur een bericht

Door een bericht te sturen kom je in contact met de aanbieder of makelaar van de woning.

Bericht versturen

Woningdetails

  • Huurprijs p.m. :

  • Oppervlakte :

  • Kamers :

  • Badkamers :

  • Slaapkamers :

  • € 2.031,00

  • 83 m2

  • 2

  • 1

  • 1

  • Woningtype :

  • Interieur :

  • Beschikbaar vanaf :

  • Beschikbaar tot :

  • Huisgenoot :

  • Appartement

  • n/a

  • 01-01-2026

  • n/a

  • 0

Faciliteiten

  • Badkamer :

  • Toilet :

  • Keuken :

  • Woonkamer :

  • Internet beschikbaar :

  • Privé

  • Privé

  • Privé

  • Privé

  • Ja

  • Huisdieren :

  • Roken :

  • Parkeerplaats :

  • Fietsenstalling :

  • Verboden

  • Verboden

  • Niet beschikbaar

  • Niet beschikbaar

Locatie