header-logo2.png Huurflits

Appartement Admiraliteitskade in Rotterdam

Admiraliteitskade , Rotterdam

€ 2.395,00 excl. G/W/E

Beschrijving

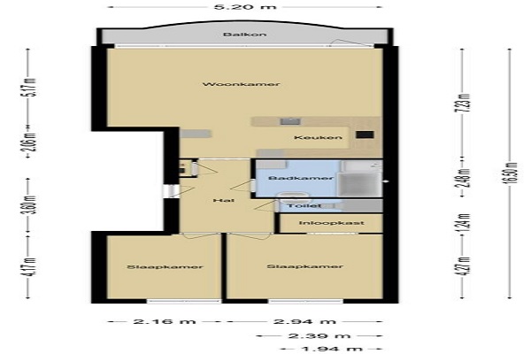
Entree met bellentableau, brievenbussen en liften die toegang geven tot de (privé) bergingen en het appartement. -Alle wanden glad gestuukt en plafond, kozijnen en deuren geschilderd. -Ruime hal met meterkast (nieuwe meterkast). -Ruime, lichte woonkamer (ca. 7,25 x 5,25m) aan de voorzijde, met een deur naar het balkon op het zuiden. -De voorzijde van het gebouw is zeer zonnig en heeft uitzicht op het water. -Volledig nieuwe keuken voorzien van alle gemakken (koelkast, vriezer, wasmachine, combimagnetron en inductiekookplaat met aanrechtbladafzuiging). -Volledig nieuwe badkamer (aparte, ruime inloopdouche, dubbele wastafel, spiegel met verlichting, badmeubel en wasmachine en droger). -Volledig nieuw toilet (wandcloset). -Hoofdslaapkamer (ca. 4,30 x 2,95 m) plus aangrenzende inloopkast (1,30 x 1,95 m). -Tweede slaap-/werkkamer (ca. 4,30 x 2,25 m).

Verstuur een bericht

Door een bericht te sturen kom je in contact met de aanbieder of makelaar van de woning.

Bericht versturen

Woningdetails

  • Huurprijs p.m. :

  • Oppervlakte :

  • Kamers :

  • Badkamers :

  • Slaapkamers :

  • € 2.395,00

  • 76 m2

  • 3

  • 1

  • 2

  • Woningtype :

  • Interieur :

  • Beschikbaar vanaf :

  • Beschikbaar tot :

  • Huisgenoot :

  • Appartement

  • n/a

  • 21-11-2025

  • n/a

  • 0

Faciliteiten

  • Badkamer :

  • Toilet :

  • Keuken :

  • Woonkamer :

  • Internet beschikbaar :

  • Privé

  • Privé

  • Privé

  • Privé

  • Ja

  • Huisdieren :

  • Roken :

  • Parkeerplaats :

  • Fietsenstalling :

  • Toegestaan

  • Toegestaan

  • Niet beschikbaar

  • Niet beschikbaar

Locatie