header-logo2.png Huurflits

Appartement Jo Wüthrichlaan in Utrecht

Jo Wüthrichlaan , 3526 XX Utrecht

€ 2.000,00 excl. G/W/E

Beschrijving

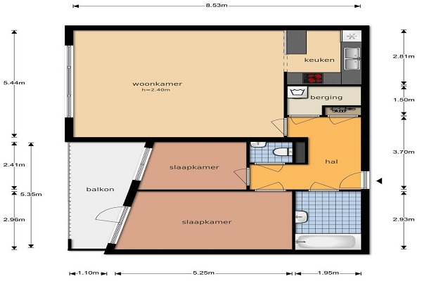
Indeling: Afgesloten centrale hal met brievenbussen en toegang tot de liften en het trappenhuis. Eerste etage: Entree appartement. Ruime hal met meterkast en garderobe, inpandige berging en toilet. Aan de linkerzijde van het appartement bevinden zich twee slaapkamers waarvan de grootste toegang biedt tot het balkon. Deze is gelegen op het zuiden en heeft een zonnescherm en biedt vrij uitzicht over Park Transwijk. De badkamer is inpandig en voorzien van een ligbad, een wastafel met zuil eronder alsmede een radiator. De woonkamer is ruim en voorzien van een halfopen keuken. De keuken in L-vorm is voorzien van diverse inbouwapparatuur waaronder een vaatwasser, koelkast, vriezer, oven, kookplaat en afzuigkap. In de onderbouw is er een parkeerplaats te huur en een berging aanwezig. De deur naar de parkeergarage is elektrisch bedienbaar. Voorkeur voor een werkende alleenstaande of een stel. NIET VOOR WONINGDELERS.

Verstuur een bericht

Door een bericht te sturen kom je in contact met de aanbieder of makelaar van de woning.

Bericht versturen

Woningdetails

  • Huurprijs p.m. :

  • Oppervlakte :

  • Kamers :

  • Badkamers :

  • Slaapkamers :

  • € 2.000,00

  • 85 m2

  • 3

  • 1

  • 2

  • Woningtype :

  • Interieur :

  • Beschikbaar vanaf :

  • Beschikbaar tot :

  • Huisgenoot :

  • Appartement

  • n/a

  • 19-11-2025

  • n/a

  • 0

Faciliteiten

  • Badkamer :

  • Toilet :

  • Keuken :

  • Woonkamer :

  • Internet beschikbaar :

  • Privé

  • Privé

  • Privé

  • Privé

  • Ja

  • Huisdieren :

  • Roken :

  • Parkeerplaats :

  • Fietsenstalling :

  • Verboden

  • Verboden

  • Niet beschikbaar

  • Niet beschikbaar

Locatie