 Huurflits
                Huurflits
            Hoogstraat , 1811 JK Alkmaar
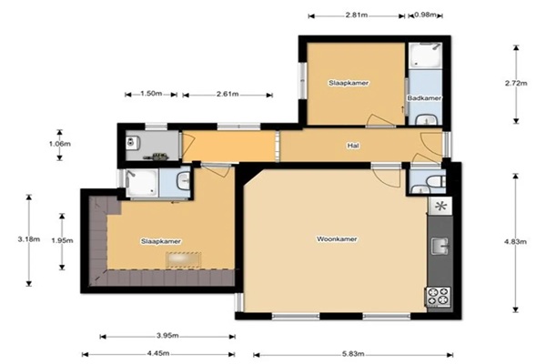
Gemeenschappelijke entree met videofooninstallatie, hal naar trapopgang aan de achterzijde van het complex. De gemeenschappelijke entree wordt gedeeld met de 3 andere appartementen, aan de achterzijde van het complex bevind zich een gemeenschappelijke patio voor o.a. het stallen van de fiets. Privé entree, bij binnenkomst sta je meteen in de open keuken welke beschikt over een modern keukenblok welke is voorzien van diverse inbouwapparatuur zoals een vaatwasser, inductiekookplaat, koelkast met vrieslade, combi-oven/magnetron, afzuigkap, soft-closing lades en veel onder- en bovenkastruimte. Tegenover de keuken bevinden zich de slaapkamer en de badkamer. De ruime slaapkamer heeft een oppervlakte van ca. 12 m² en beschikt over twee draai-/kiepramen. De moderne en luxe afgewerkte badkamer is voorzien van inloopdouche, hangend toilet, wastafelmeubel met spiegelkast, aansluiting voor de wasmachine en vloerverwarming. Aan de voorzijde van het appartement bevind zich de lichte woonkamer met een mooie frontbreedte van bijna 5 meter. Het gehele appartement is voorzien van vloerverwarming, afgewerkt met een strakke PVC-vloer en afgewerkt in lichte kleurstellingen.
Huurprijs p.m. :
Oppervlakte :
Kamers :
Badkamers :
Slaapkamers :
€ 1.295,00
42 m2
2
1
1
Woningtype :
Interieur :
Beschikbaar vanaf :
Beschikbaar tot :
Huisgenoot :
Appartement
n/a
31-10-2025
n/a
0
Badkamer :
Toilet :
Keuken :
Woonkamer :
Internet beschikbaar :
Privé
Privé
Privé
Privé
Ja
Huisdieren :
Roken :
Parkeerplaats :
Fietsenstalling :
Toegestaan
Toegestaan
Niet beschikbaar
Niet beschikbaar