
Boschstraat , 6211 AB Maastricht
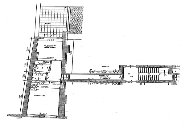
Indeling De ruime hal geeft toegang tot de woonkamer, slaapkamer, badkamer en berging. De woonkamer van ongeveer 15 m² staat in open verbinding met de keuken en biedt een prettige leefruimte. Een open keuken van circa 5 m², momenteel zonder inbouwapparatuur. De badkamer is voorzien van een wastafel, douche en toilet. Een slaapkamer van ongeveer 10 m², met directe toegang tot het terras. Een heerlijk terras van circa 13 m², ideaal om te ontspannen en te genieten van het stadsleven. Het appartement heeft een inpandige berging met aansluiting voor de wasmachine en de cv-installatie. Daarnaast is er een aparte berging in het souterrain voor extra opbergruimte.
Huurprijs p.m. :
Oppervlakte :
Kamers :
Badkamers :
Slaapkamers :
€ 1.110,00
47 m2
2
1
1
Woningtype :
Interieur :
Beschikbaar vanaf :
Beschikbaar tot :
Huisgenoot :
Appartement
n/a
01-11-2025
n/a
0
Badkamer :
Toilet :
Keuken :
Woonkamer :
Internet beschikbaar :
Privé
Privé
Privé
Privé
Ja
Huisdieren :
Roken :
Parkeerplaats :
Fietsenstalling :
Toegestaan
Toegestaan
Niet beschikbaar
Niet beschikbaar