
Piet Mondriaanplein , 3812 GZ Amersfoort
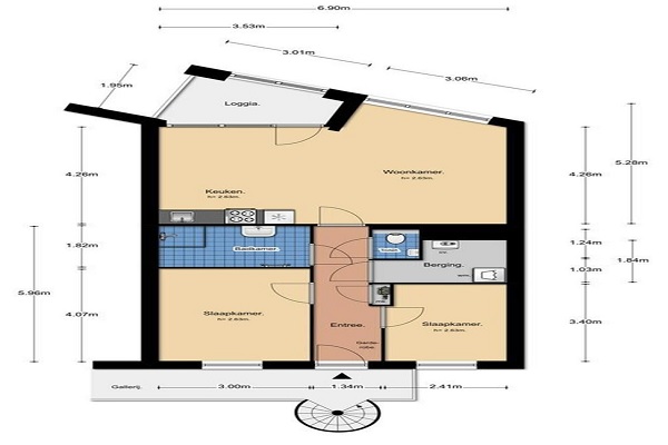
De entree met hal geeft toegang tot de meterkast, apart toilet, nette badkamer met douchecabine en wastafel. Ruime en lichte woonkamer met grote raampartijen waarbij u heerlijk vrij uitzicht heeft over het plein. Moderne open keuken voorzien van vaatwasser, koelkast, combi magnetron en gaskookplaat. Vanuit de woonkamer betreed u het zonnig gelegen balkon/loggia gelegen op het zuiden. Twee ruime slaapkamers aan de noordzijde van de woning. Aparte bergruimte met wasmachineaansluiting en CV-ketel. Geen woningdelers, studenten of vrienden;
Huurprijs p.m. :
Oppervlakte :
Kamers :
Badkamers :
Slaapkamers :
€ 1.800,00
74 m2
3
1
2
Woningtype :
Interieur :
Beschikbaar vanaf :
Beschikbaar tot :
Huisgenoot :
Appartement
n/a
18-10-2025
n/a
0
Badkamer :
Toilet :
Keuken :
Woonkamer :
Internet beschikbaar :
Privé
Privé
Privé
Privé
Ja
Huisdieren :
Roken :
Parkeerplaats :
Fietsenstalling :
Verboden
Verboden
Niet beschikbaar
Niet beschikbaar