header-logo2.png Huurflits

Kamer Mient in Den Haag

Mient , 2564 LA Den Haag

€ 750,00 incl. G/W/E

Beschrijving

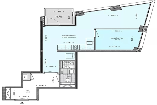
Het pand is alleen beschikbaar voor verhuur aan een groep van drie studenten. Voor de kamerindeling kijk op de plattegrond – Voor de indeling kunt u de floorplanner raadplegen. De woning ligt op de eerste verdieping in een gezellige wijk waar buurtbewoners graag samenkomen en veel wordt georganiseerd. In de omgeving vind je lokale winkels en gezellige horeca en kun je genieten van de pleintjes en het groen. Ook de bereikbaarheid is een groot pluspunt: het centrum van Den Haag en de uitvalswegen richting zijn eenvoudig te bereiken. Ook zijn er diverse sportfaciliteiten en het openbaar vervoer te bevinden op loop-/fietsafstand Strandliefhebbers zijn blij: Kijkduin bereik je gemakkelijk op de fiets. De kamers, geschikt voor 1 persoon, zijn voorzien van: Houten vloer Universele keuken met alle voorzieningen evt. badkamer Kamer is een combinatie van de kleine voor kamer en de kleine achterkamer Hier mogen enkel studenten wonen.

Verstuur een bericht

Door een bericht te sturen kom je in contact met de aanbieder of makelaar van de woning.

Bericht versturen

Woningdetails

  • Huurprijs p.m. :

  • Oppervlakte :

  • Kamers :

  • Badkamers :

  • Slaapkamers :

  • € 750,00

  • 20 m2

  • 1

  • 1

  • 1

  • Woningtype :

  • Interieur :

  • Beschikbaar vanaf :

  • Beschikbaar tot :

  • Huisgenoot :

  • Kamer

  • n/a

  • 18-10-2025

  • n/a

  • 0

Faciliteiten

  • Badkamer :

  • Toilet :

  • Keuken :

  • Woonkamer :

  • Internet beschikbaar :

  • Gedeeld

  • Gedeeld

  • Gedeeld

  • Gedeeld

  • Ja

  • Huisdieren :

  • Roken :

  • Parkeerplaats :

  • Fietsenstalling :

  • Toegestaan

  • Toegestaan

  • Niet beschikbaar

  • Niet beschikbaar

Locatie